L-SERIES
RELATED PROJECTS
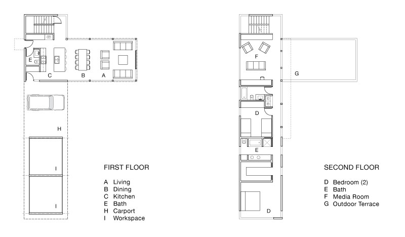
the 2-bar l
Size: 1953 SF
Dimensions: 45′-0″ x 55′-0″
3 bedrooms
2 baths
1 media room / office
The 2-Bar L is formed by an elegant and simple crossing of two axes. With three full-sized bedrooms, two bathrooms, and a large living / dining / kitchen unit, the house easily supports a moderate-sized family. Lifted above the living / dining / kitchen area is a large outdoor terrace providing excellent views and a spectacular dining, relaxing, and / or garden area.
the 2-bar bridge
Size: 1868 SF
Dimensions: 50′-0″ x 60′-0″
2 bedrooms
2 baths
1 media room / office
The 2-Bar Bridge’s most interesting feature is a bridging bar of bedrooms that creates a convenient carport on the ground floor below. The ground floor is made up of a living / dining / kitchen unit. The second floor contains two bedrooms and a versatile media room that opens to a large outdoor terrace. The terrace is perfect for warm-weather dining and relaxing while providing great views of the house’s surroundings.
the 2-bar bridge plus
Size: 2154 SF
Dimensions: 50′-0″ x 60′-0″
2 bedrooms
2 baths
1 media room / office
1 sleeping porch
An optional sleeping porch can be added to the 2-Bar Bridge typology depending on the climate. In this cases, the second floor contains two bedrooms and a versatile media room that opens to an outdoor terrace that connects to an outdoor sleeping porch. The sleeping porch is perfect as a secondary space for entertaining or a convenient children’s play space. It also proves great views of the house’s surroundings.
