TRIPLE WIDE SERIES
RELATED PROJECTS
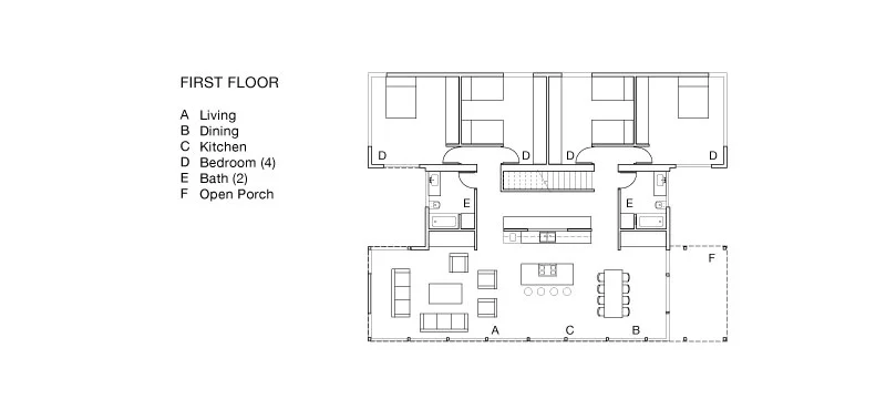
the 3-bar duplex
Size: 2282 SF
Dimensions: 45′-0″ x 60′-0″
4 bedrooms
2 baths
1 enlarged pantry
1 covered patio
The 3-Bar Duplex provides a vast amount of space, yet maintains a clear division of public and private spaces. For economic efficiency, utility functions are contained within a central unit which separates the living and bedroom modules. The four bedrooms separated into two wings allow the house to easily sustain a large family or work as a shared duplex residence.
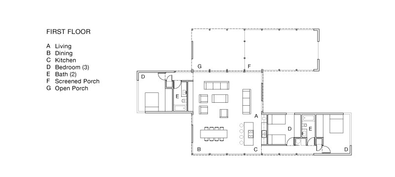
the 3-bar slip
Size: 1698 SF
Dimensions: 48′-0″ x 80′-0″
3 bedrooms
2 baths
1 screened-in porch
The 3-Bar Slip provides incredible spaciousness, and perhaps the most flexibility of the modern modular typologies. Options abound, with choices between significantly extra outdoor (shown) or indoor space available. Exterior spaces are articulated through the formal vocabulary and how the modules assemble. Tilted roof and ceiling planes work to unify spaces with similar uses and create a sense of continuity from module to module.
the 3-bar saddlebag
Size: 1909 SF
Dimensions: 48′-0″ x 60′-0″
4 bedrooms
2 baths
The 3-Bar Saddlebag provides a separation of public and private spaces in a compressed volume that works to create a lateral spaciousness. The building’s footprint creates two courtyards opening to different sides of the house, placing focus on the natural setting of the house. The house’s low profile is perfect for a treed site, whether it be thick forest of lightly wooded.
