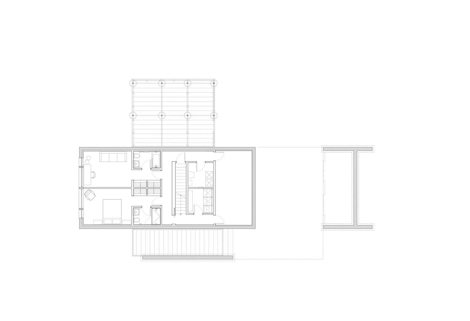
Basement
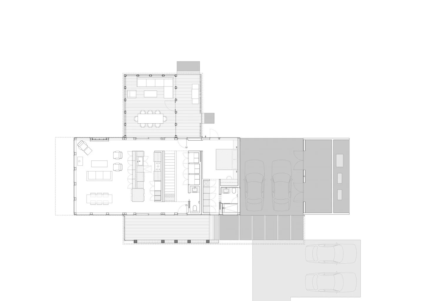
Main Level
prev / next