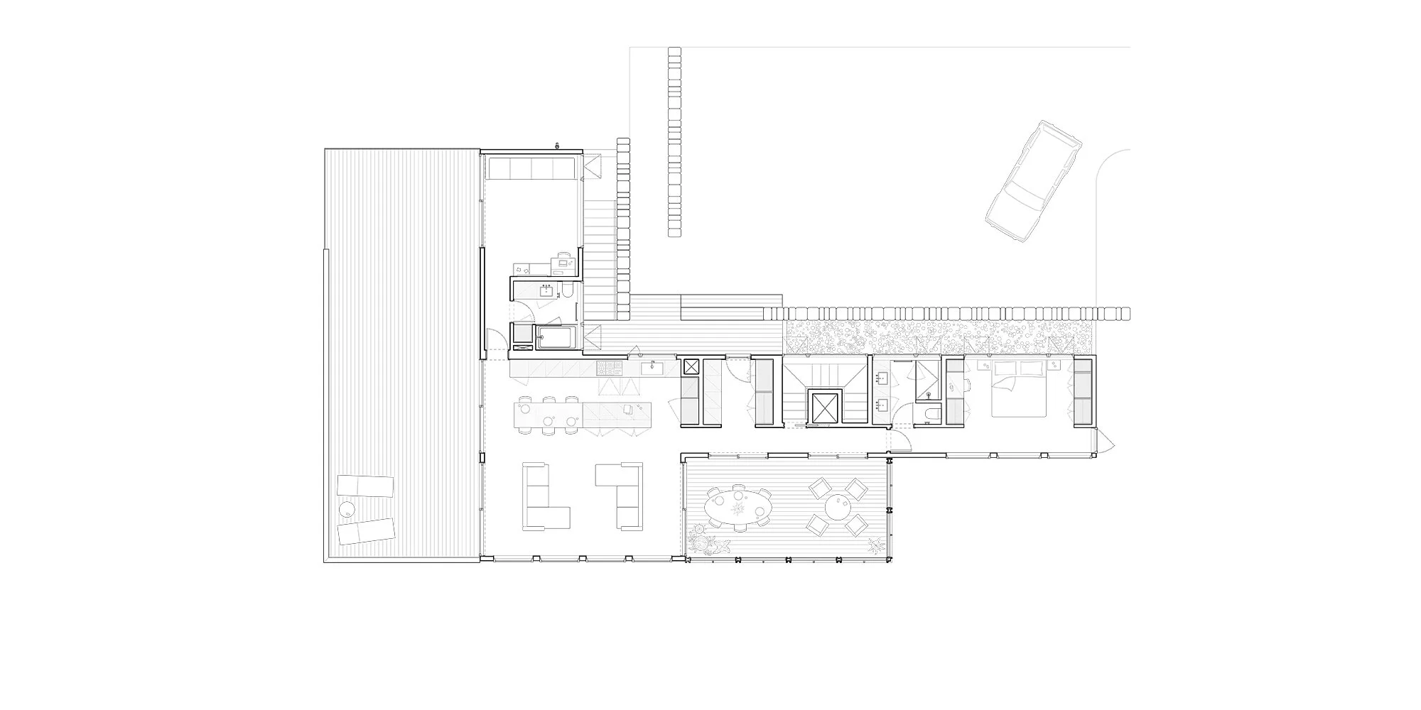
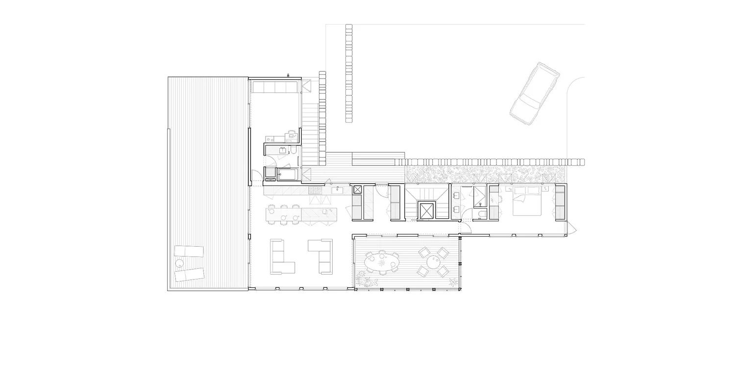
res4-resolution-4-architecture-modern-modular-prefab-sharon-ridge-residence-ground-floor-plan-drawing.jpg
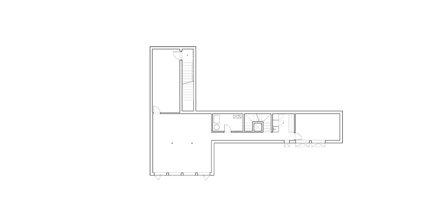
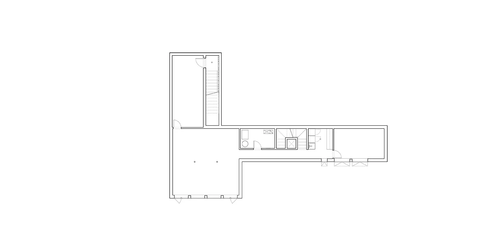
res4-resolution-4-architecture-modern-modular-prefab-sharon-ridge-residence-basement-floor-plan-drawing.jpg
prev / next