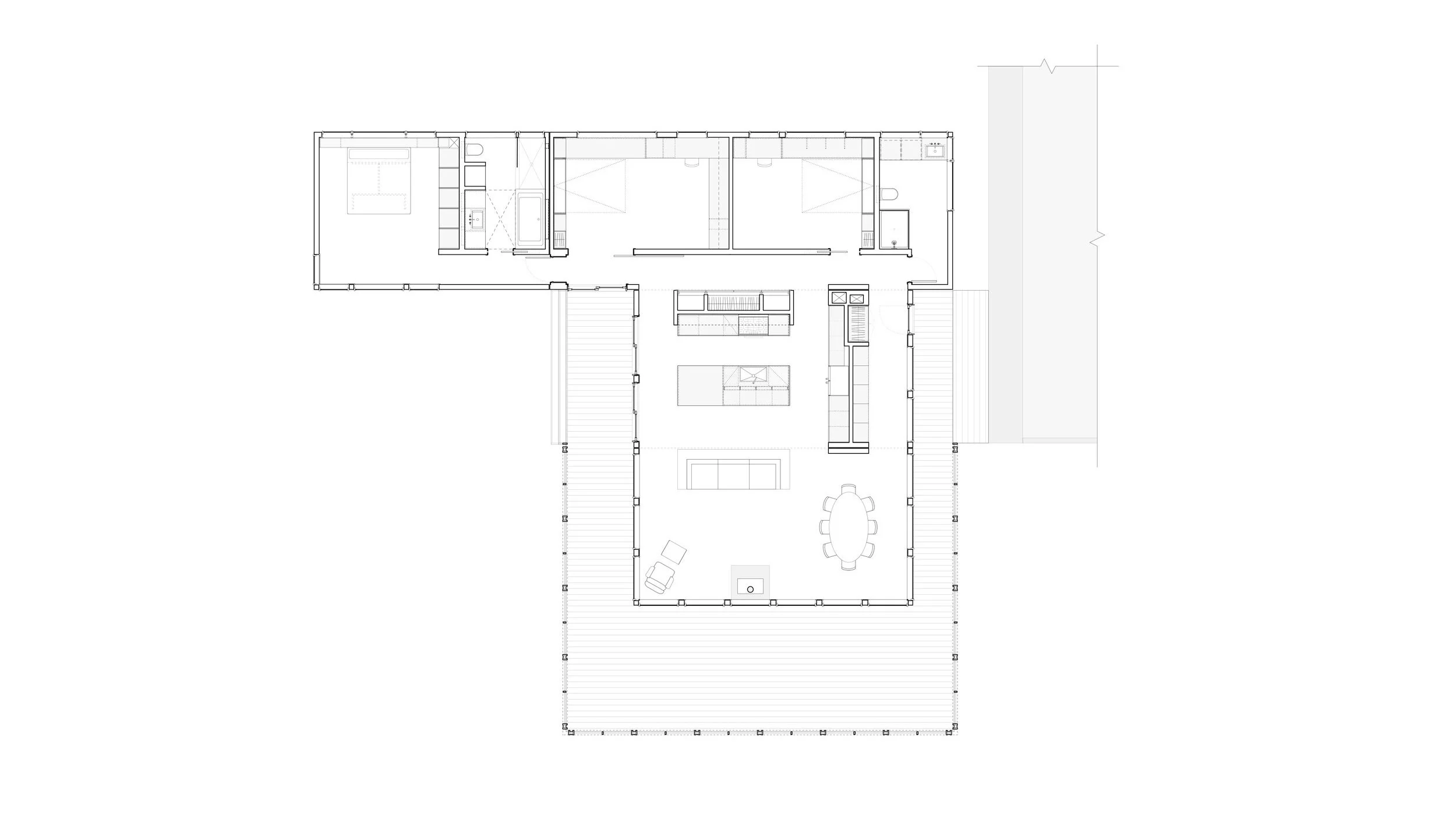
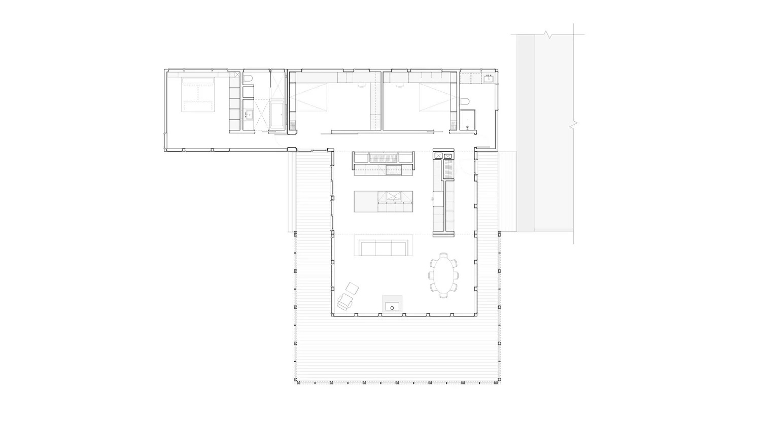
res4-resolution-4-architecture-modern-modular-house-prefab-home-sharon-residence-ct-floor-plan-drawing.jpg
prev / next