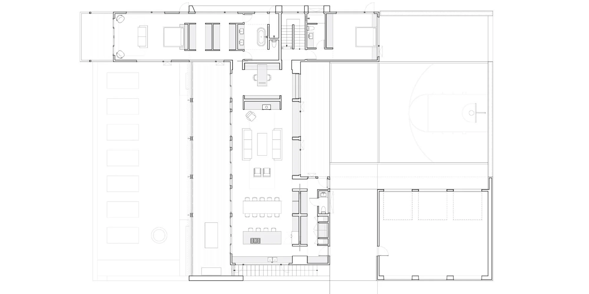
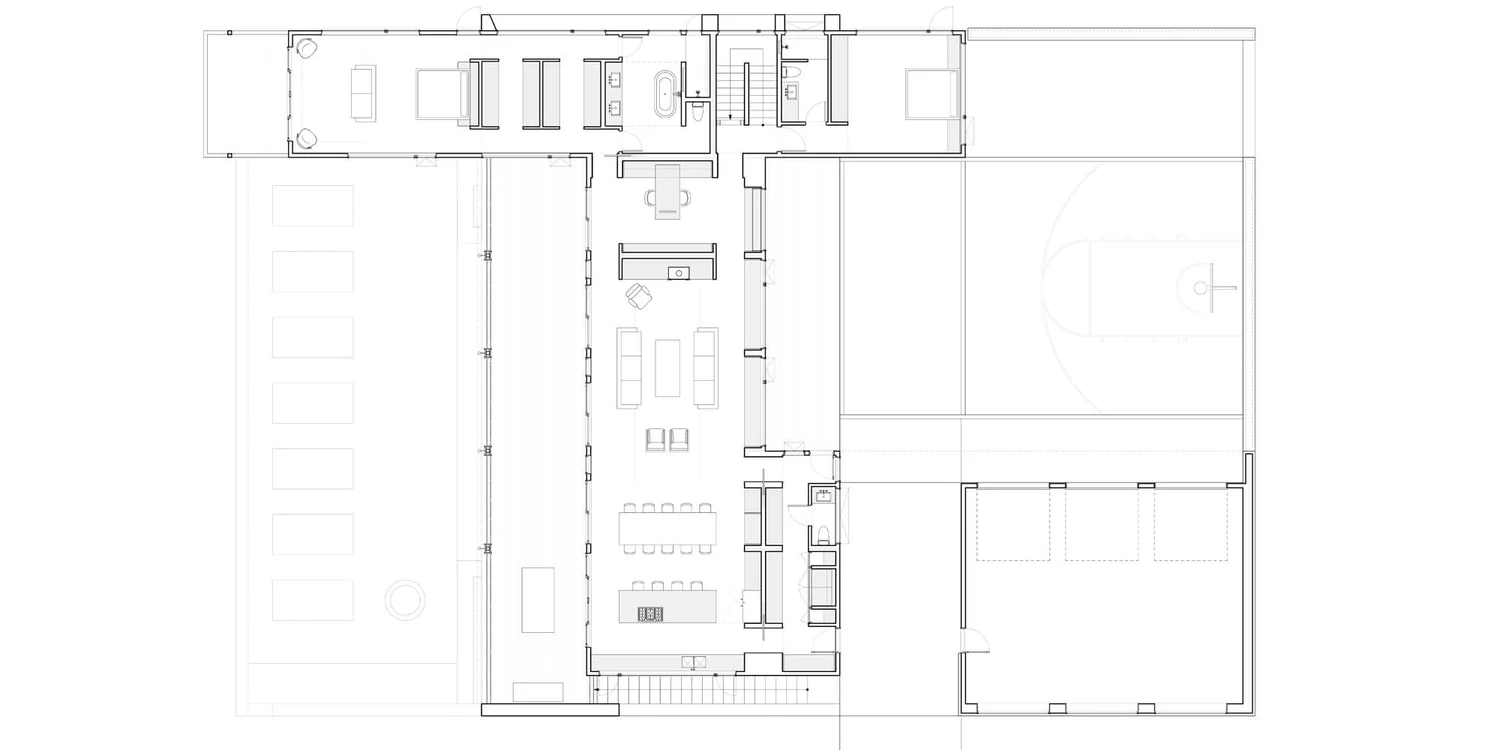
Ground Level Plan
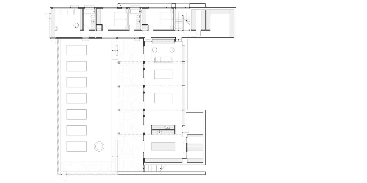
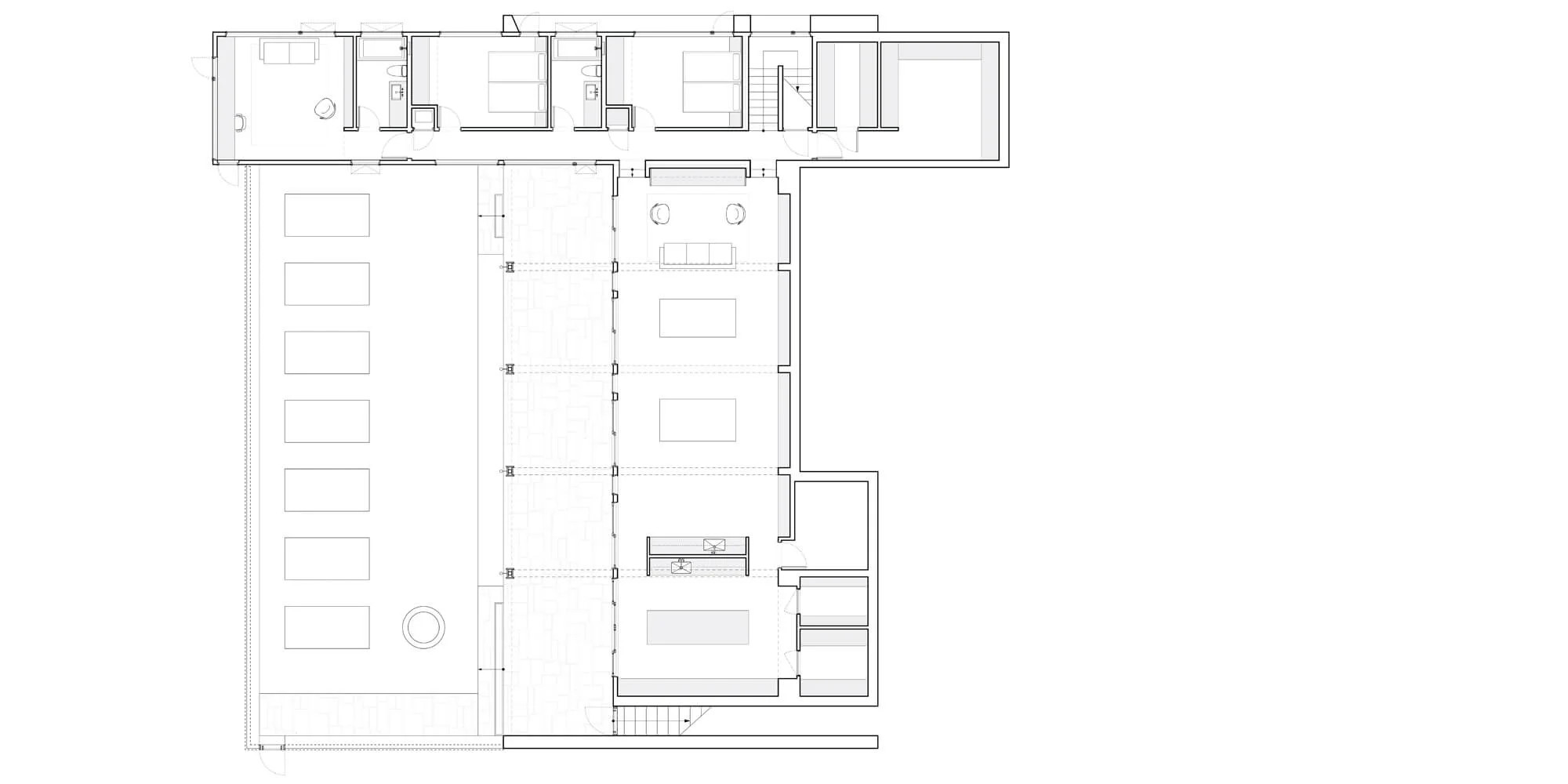
Garden Level Plan
prev / next