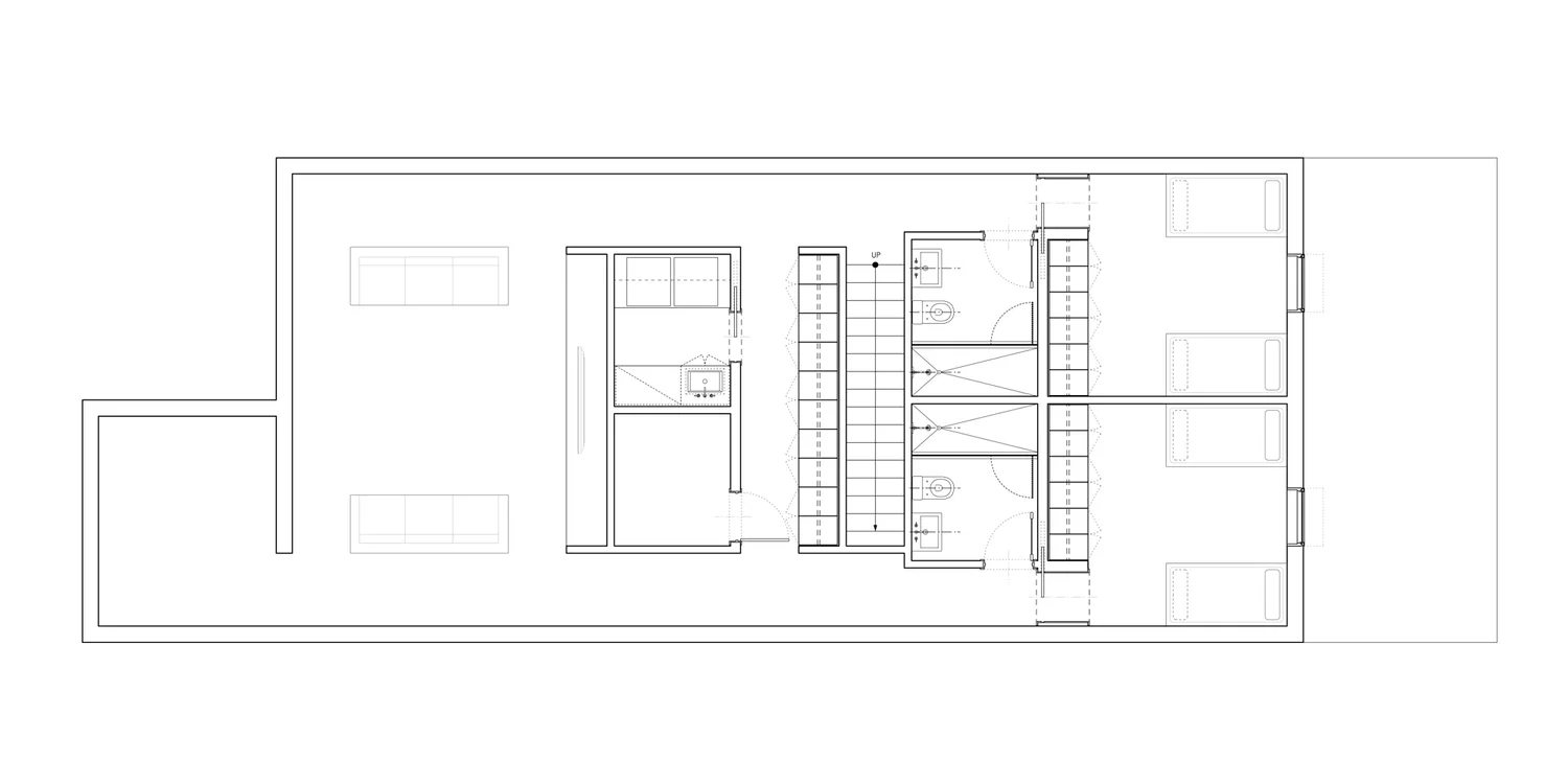
Basement Plan
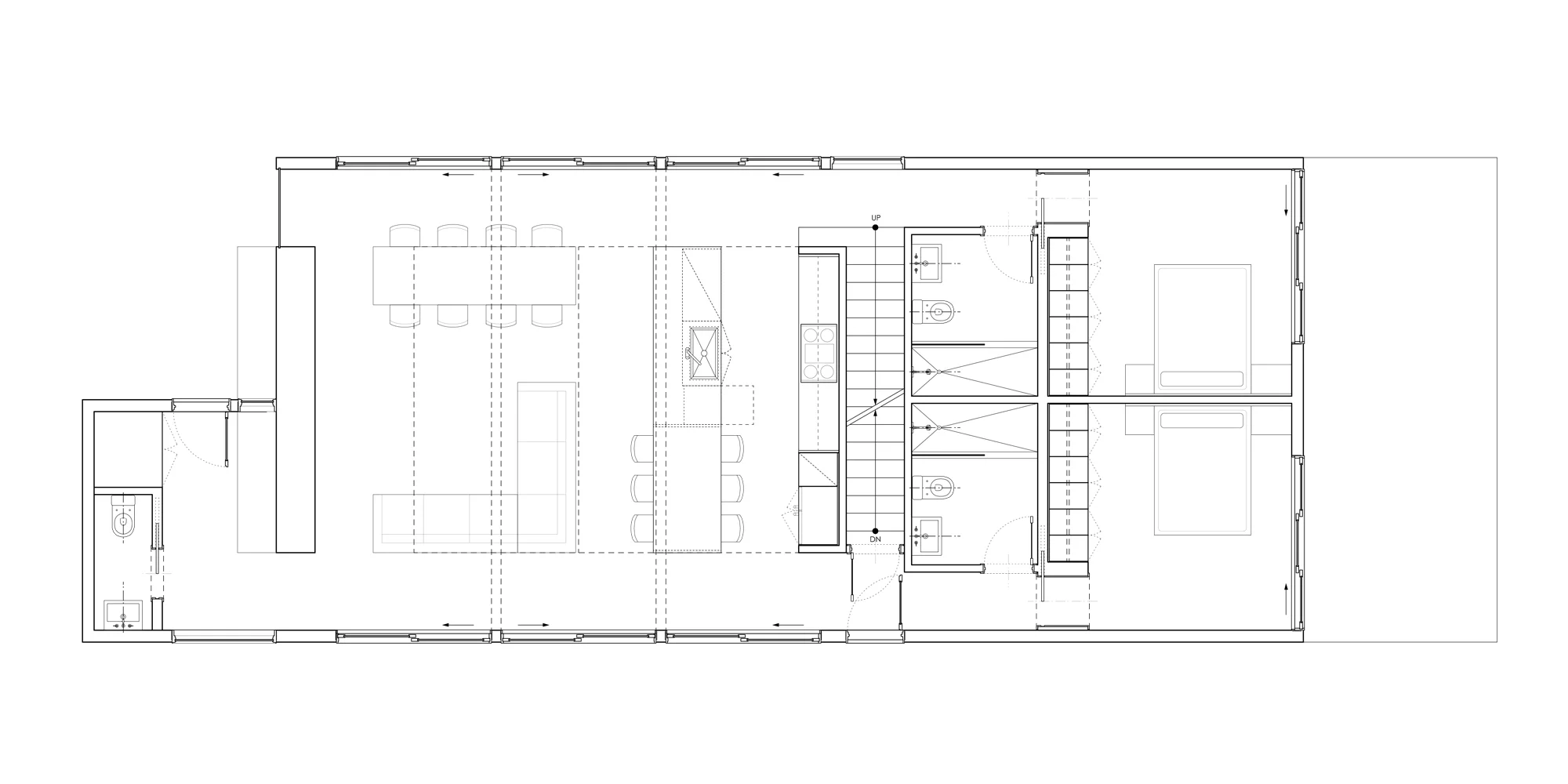
First Floor Plan
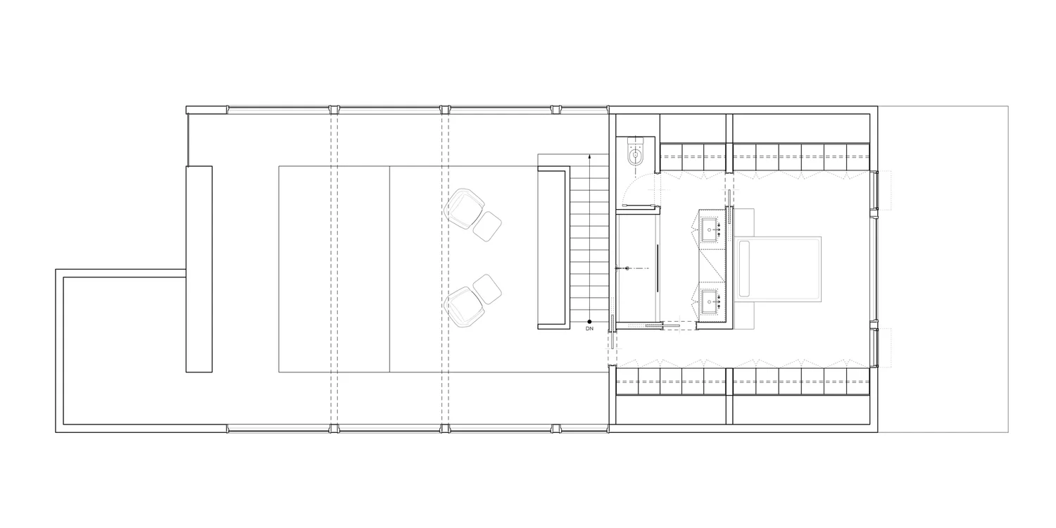
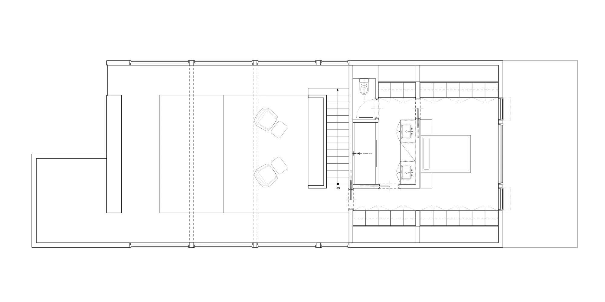
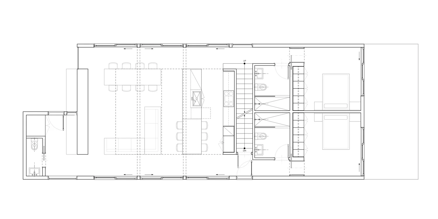
Second Floor Plan
prev / next