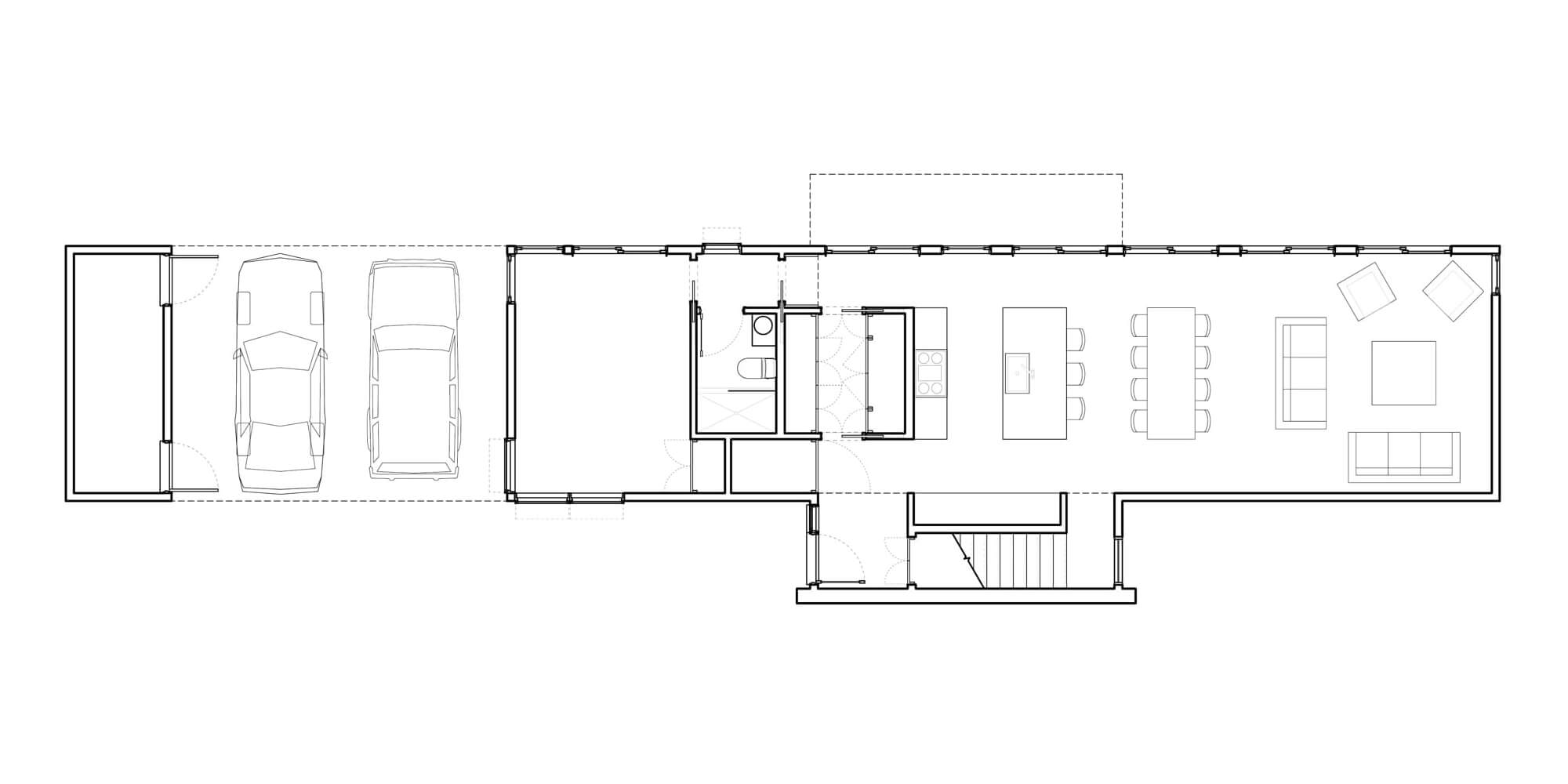
First Floor Plan
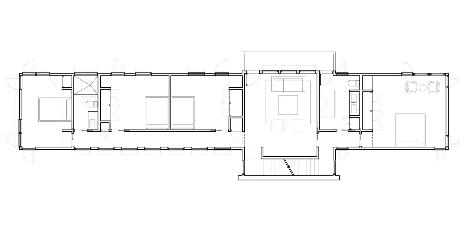
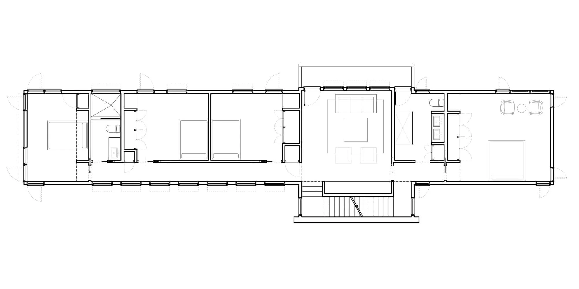
Second Floor Plan
Third Floor Plan Drawing
prev / next