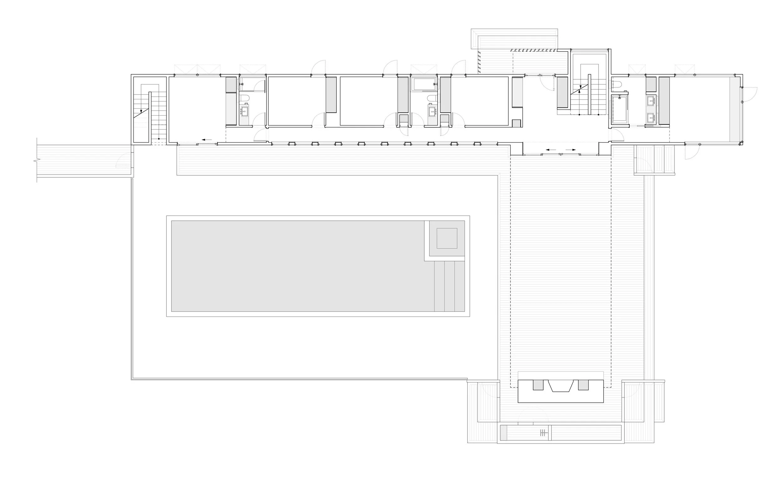
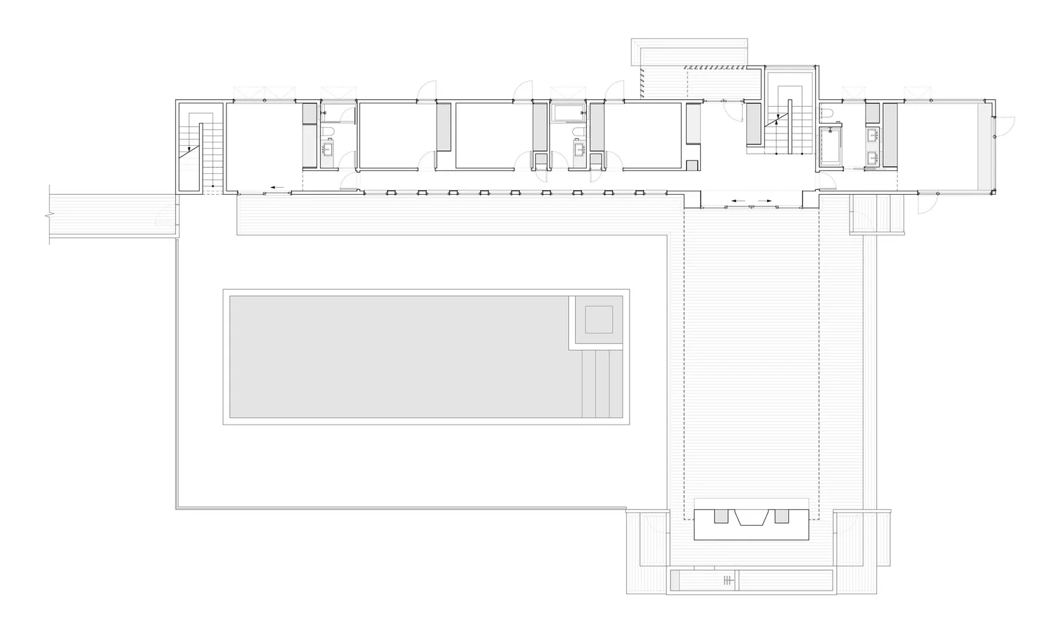
res4-resolution-4-architecture-modern-modular-prefab-home-shelter-island-new-york-ram-island-residence-lower-level-floor-plan.jpg
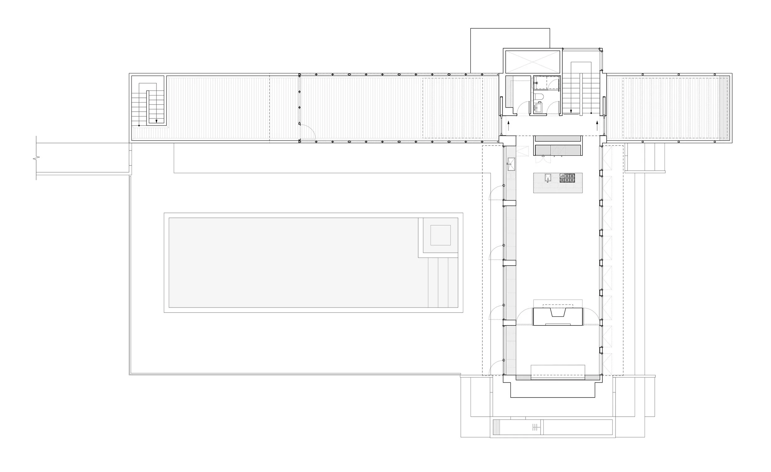
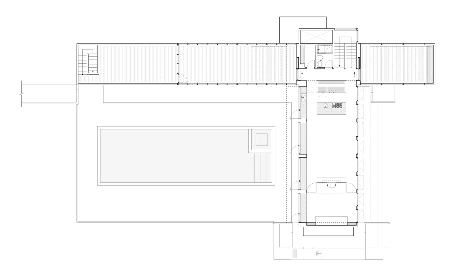
res4-resolution-4-architecture-modern-modular-prefab-home-shelter-island-new-york-ram-island-residence-upper-level-floor-plan.jpg.jpg
prev / next