Ground Floor
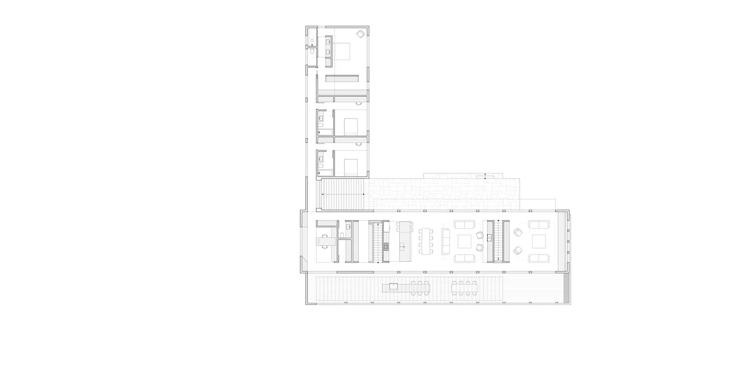
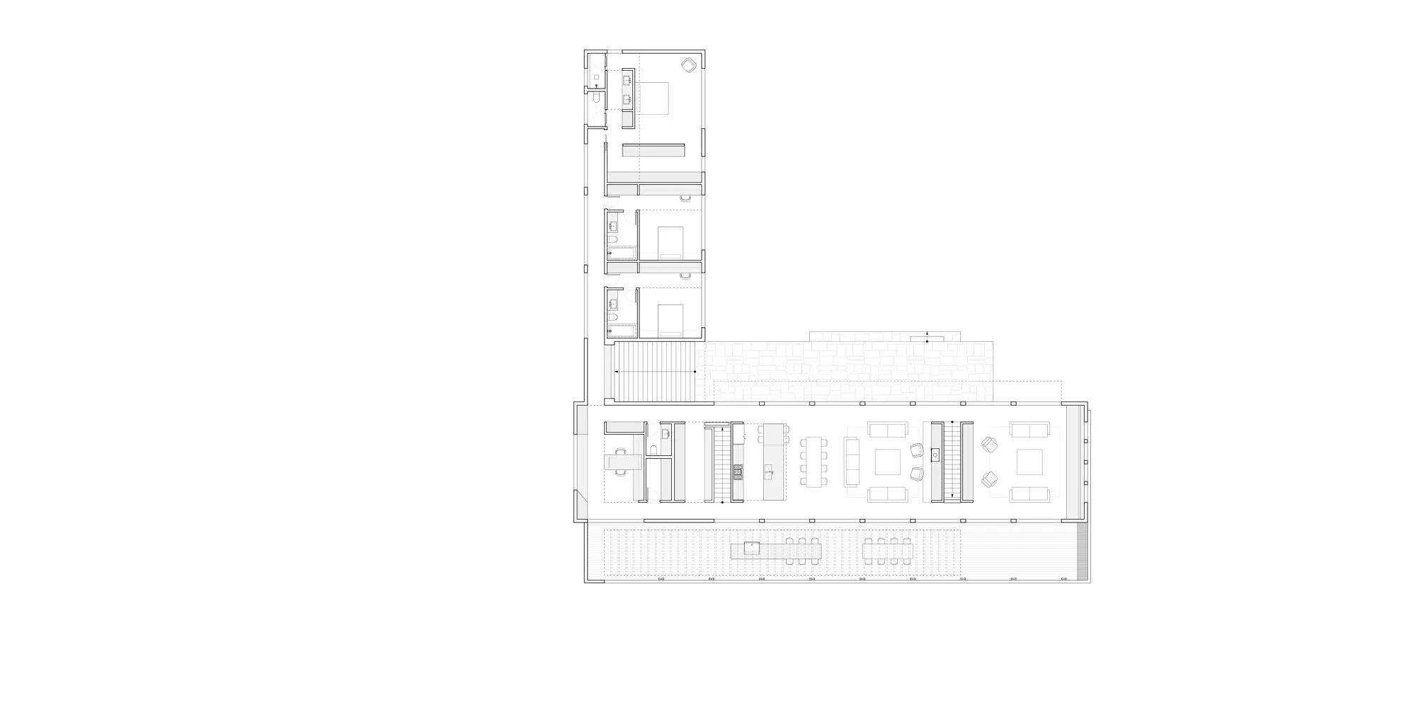
Main Floor
prev / next