res4-resolution-4-architecture-modern-modular-great-oak-residence-prefab-home-plan-00-basement.png
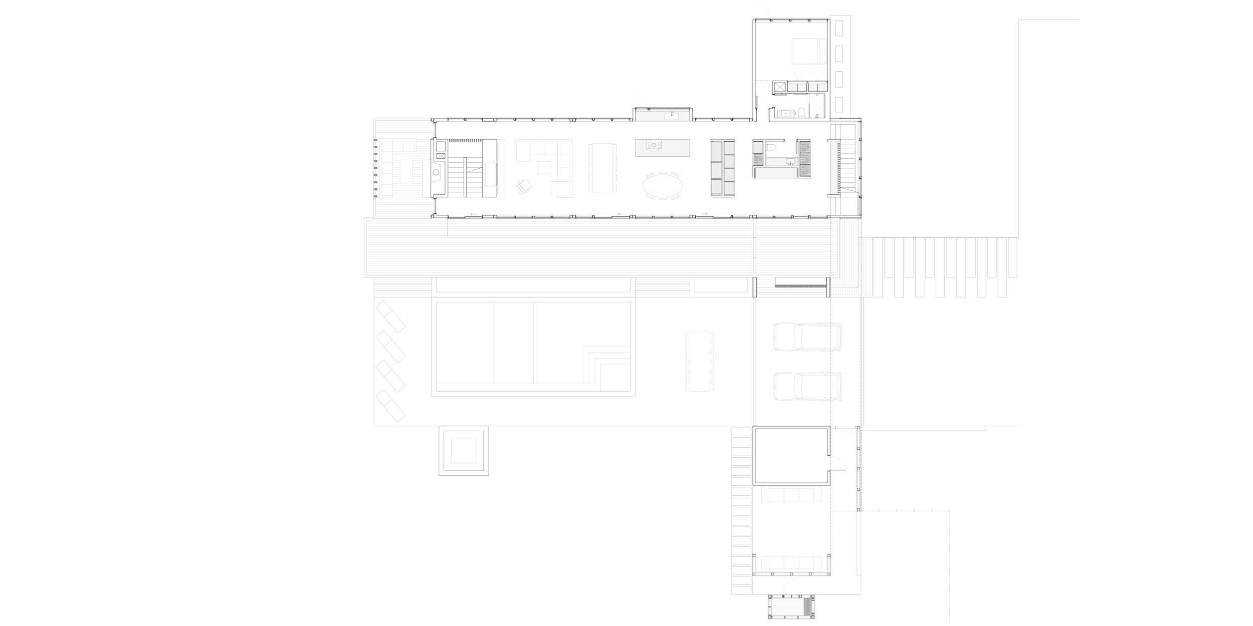
res4-resolution-4-architecture-modern-modular-great-oak-residence-prefab-home-plan-01-first floor.png
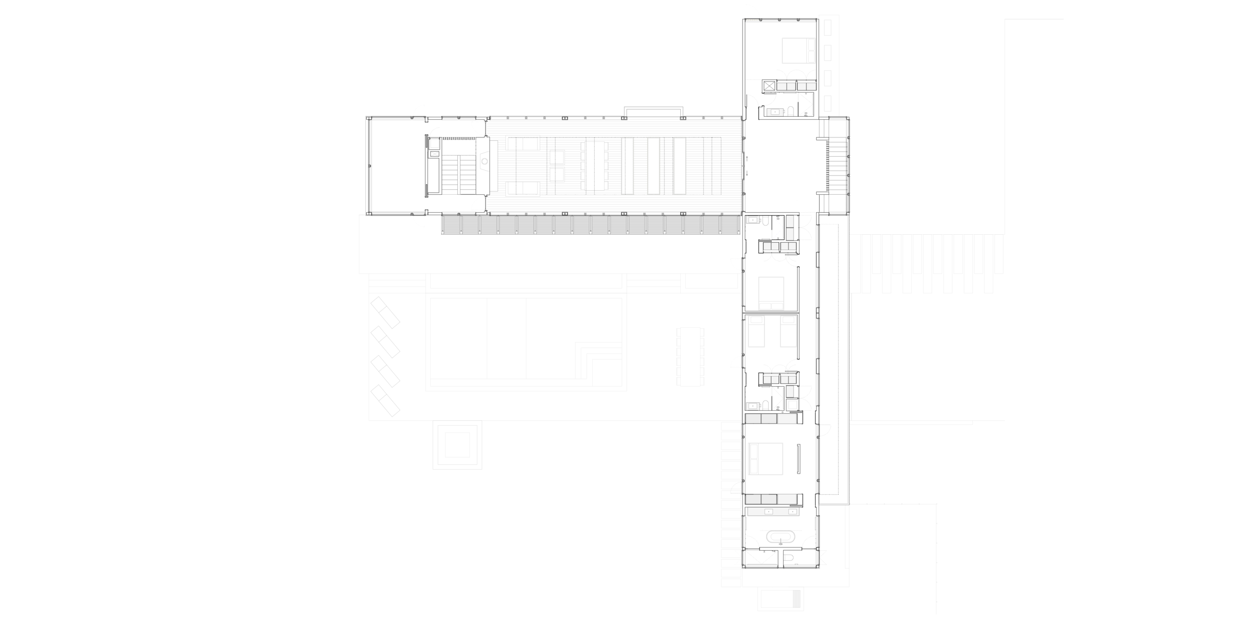
res4-resolution-4-architecture-modern-modular-great-oak-residence-prefab-home-plan-02-second floor.png
prev / next