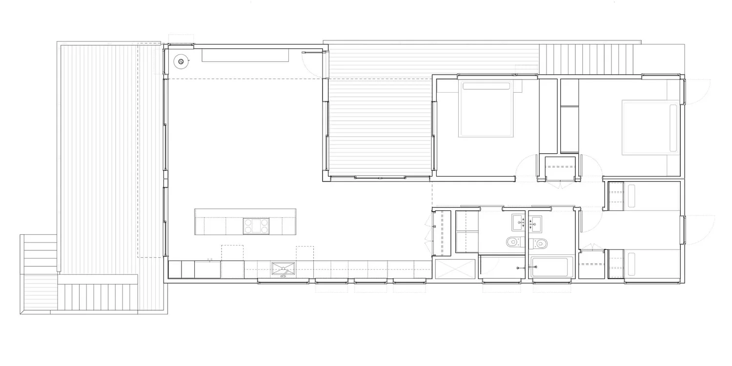
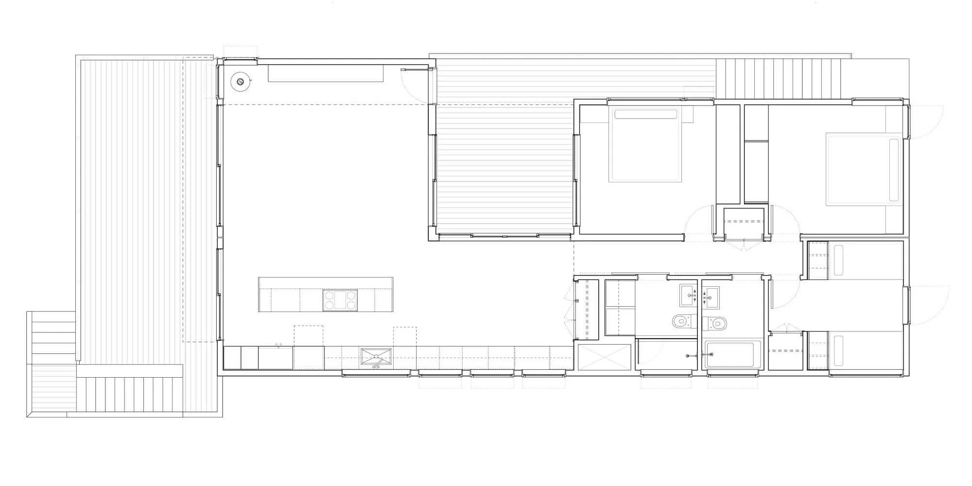
Main Level Plan
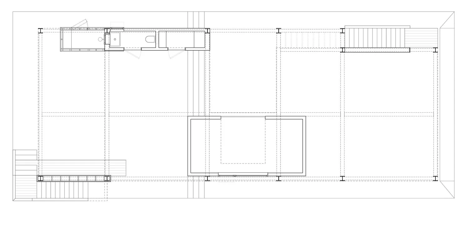
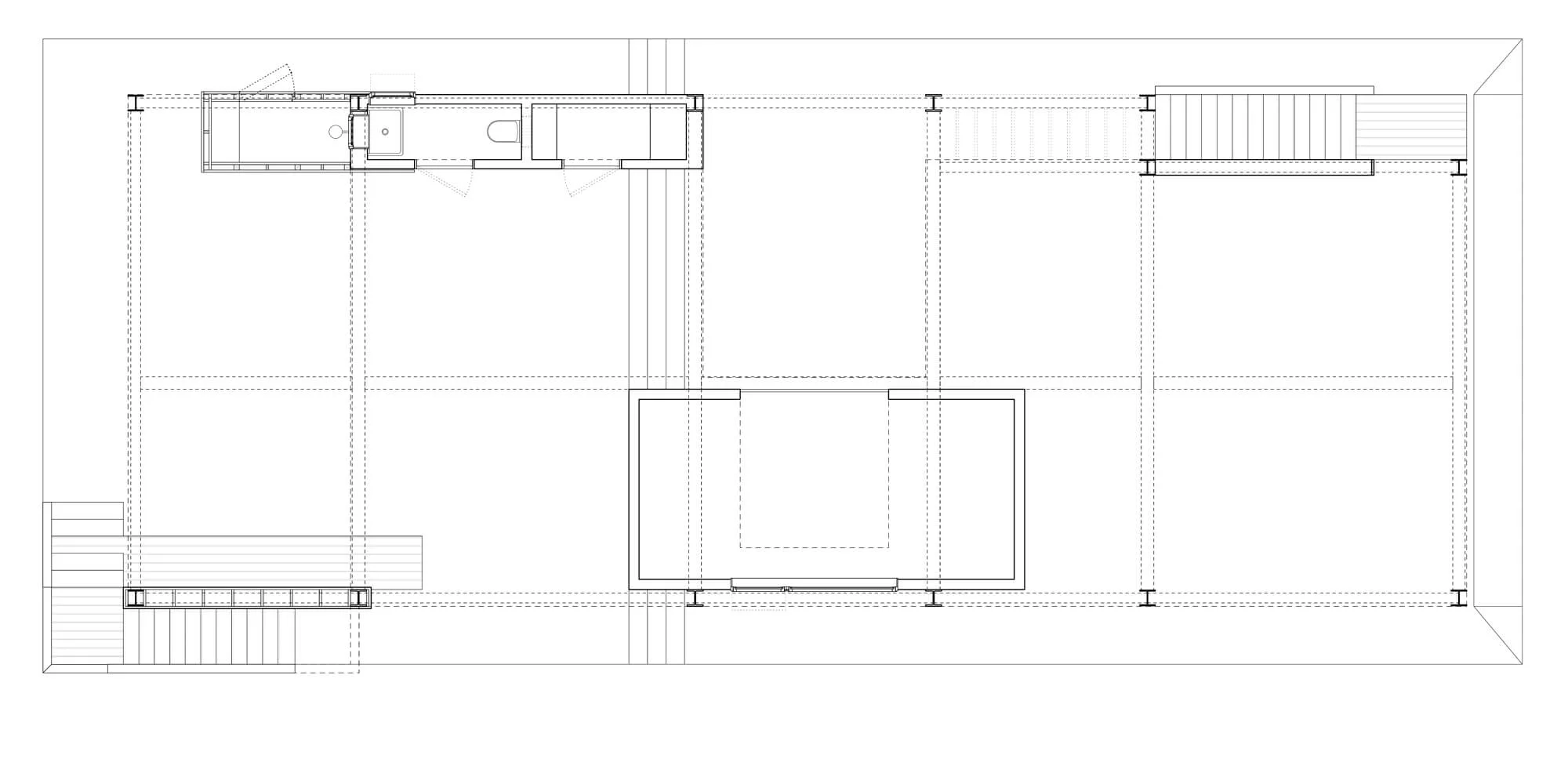
Ground Level Plan
prev / next