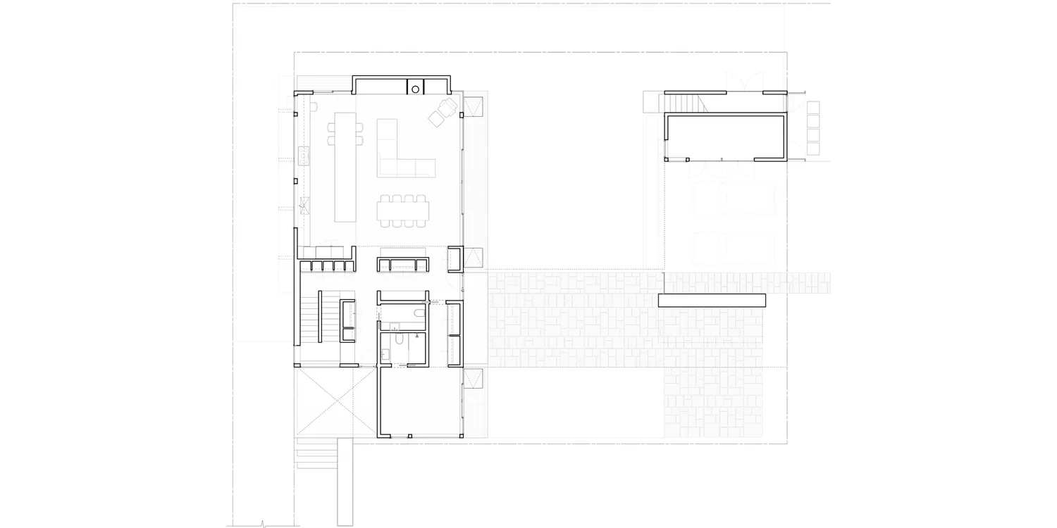
Basement Plan
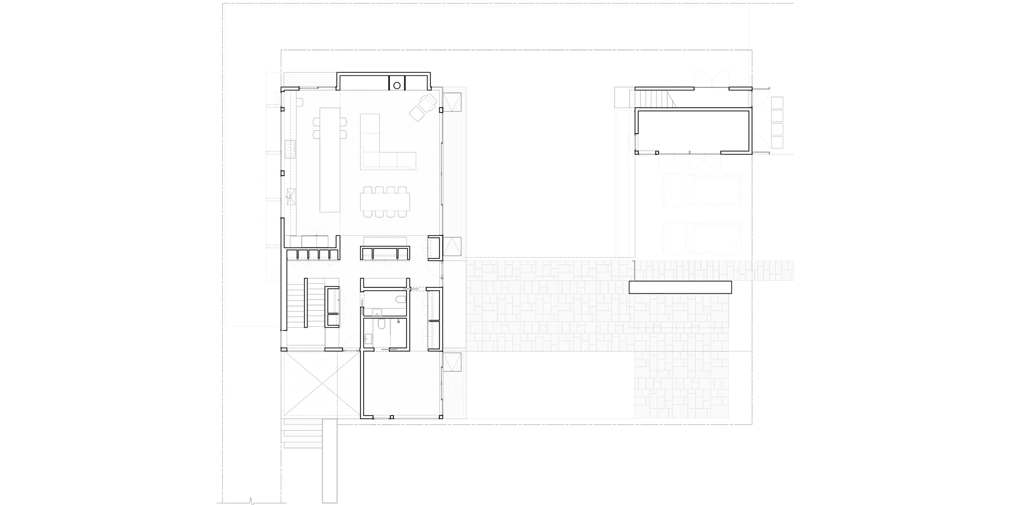
First Floor Plan
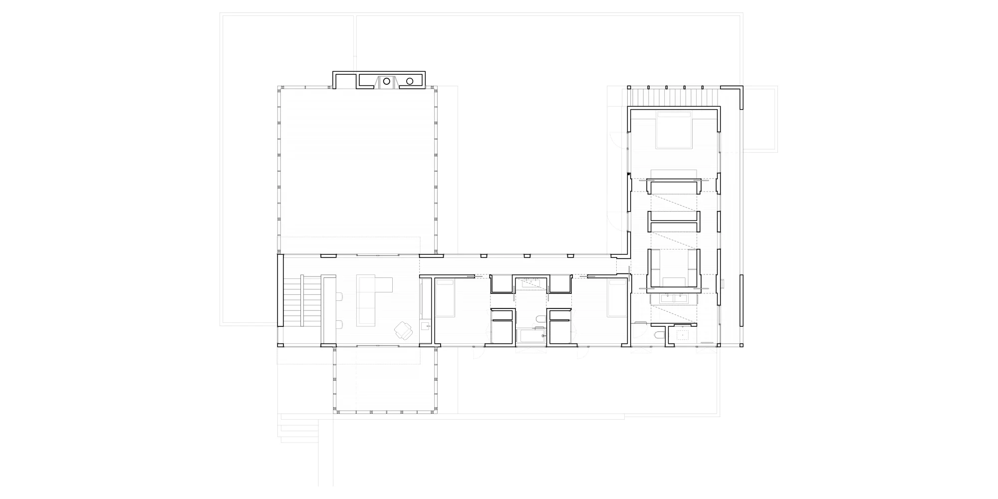
Second Floor Plan
prev / next