Modern-Modular.jpg
community02Color-min.jpg
Acessory Modules.jpg
Modules of Communal Use.jpg
Modules of Private Use.jpg
MODULES OF USE.jpg
types-min.jpg
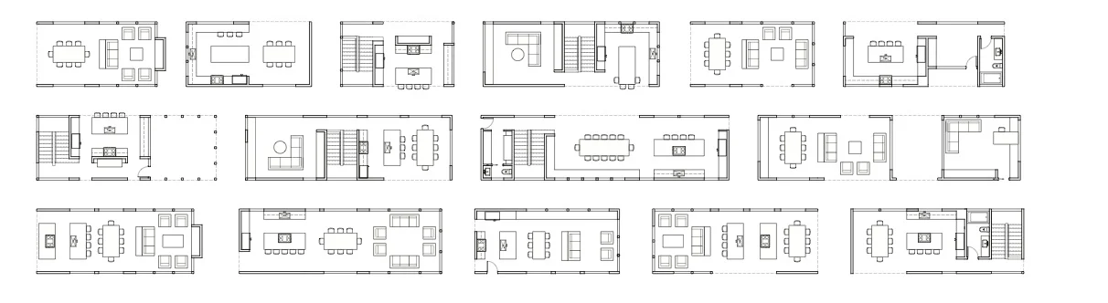
UNLIMITED 2D VARIATIONS-Transalt.jpg
UNLIMITED 2D VARIATIONS-Trans.jpg
res4-modern-modular-typology-matrix.png
res4-resolution-4-architecture-modern-modular-prefab-developed-typologies.jpg
prev / next