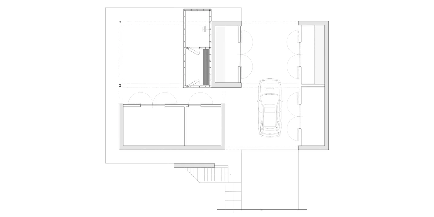
res4-resolution-4-architecture-modern-modular-prefab-lido-beach-house-II-ground-floor-plan-drawing.jpg
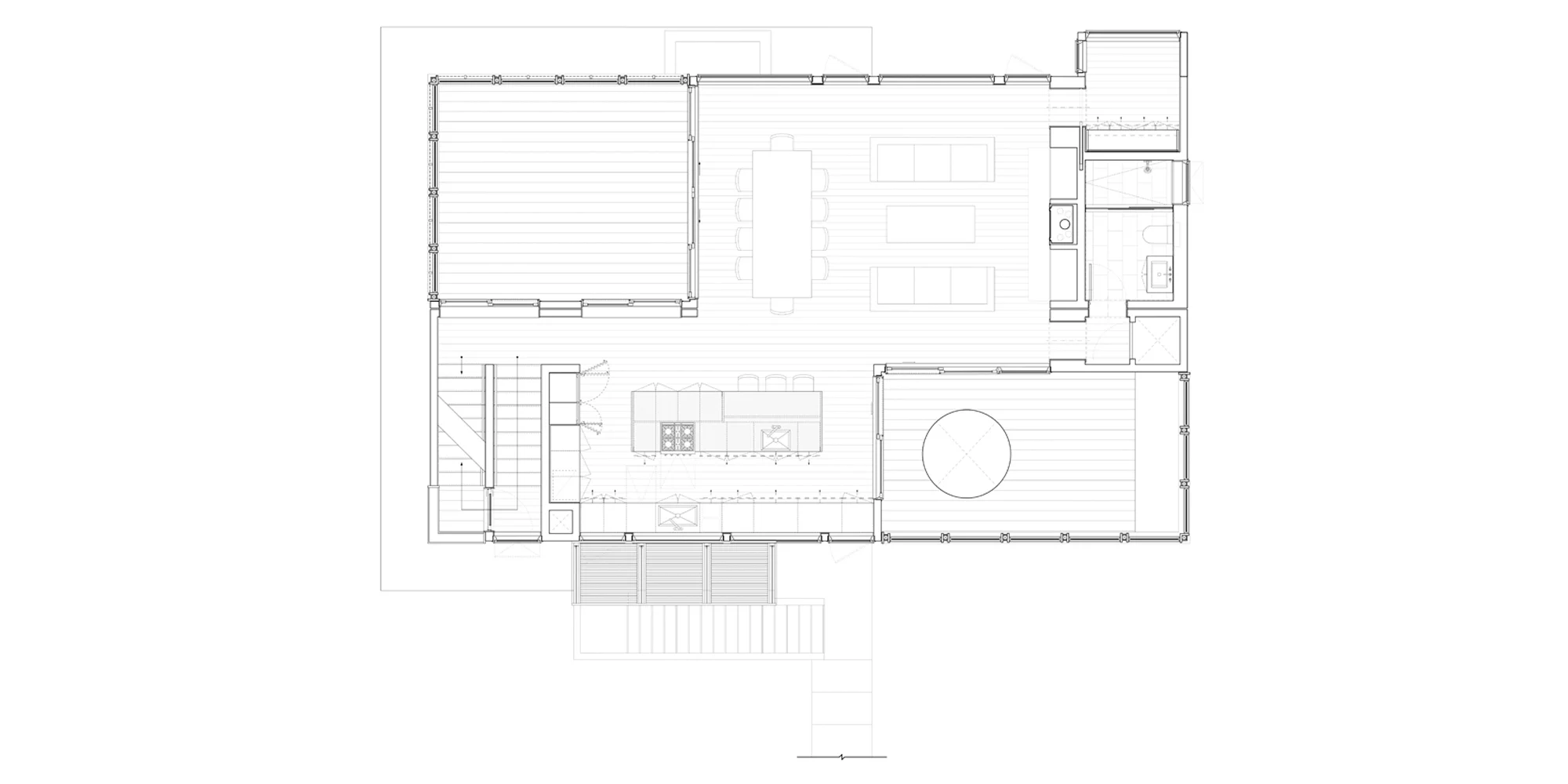
res4-resolution-4-architecture-modern-modular-prefab-lido-beach-house-II-first-floor-plan-drawing.jpg
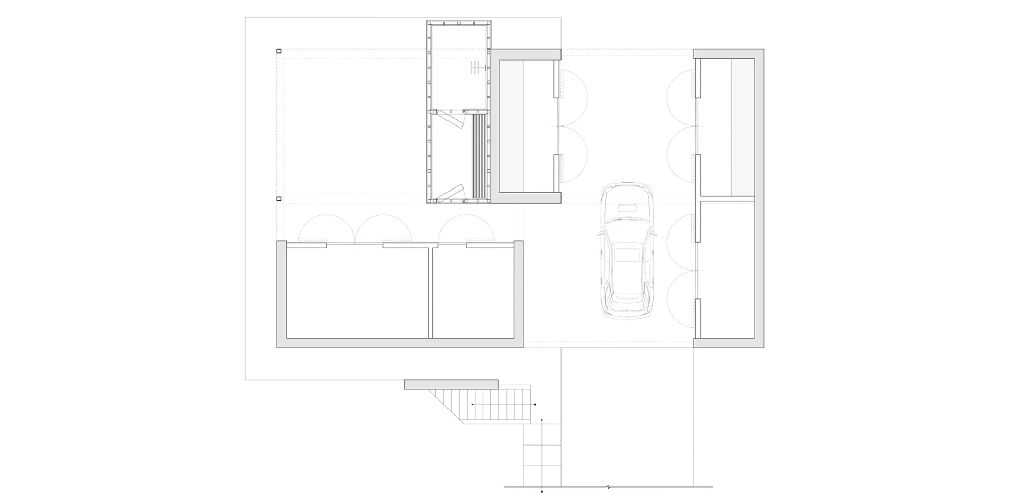
res4-resolution-4-architecture-modern-modular-prefab-lido-beach-house-II-second-floor-plan-drawing.jpg
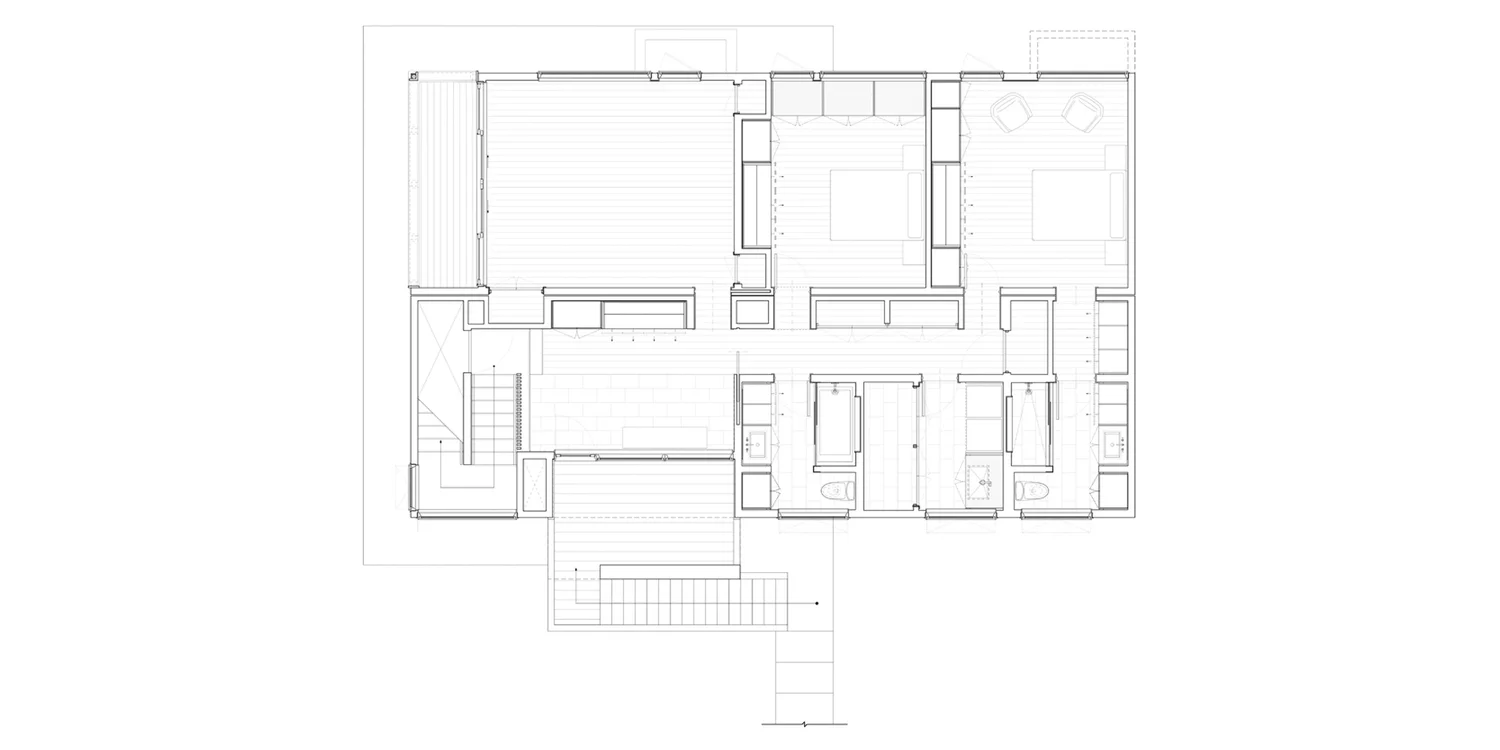
res4-resolution-4-architecture-modern-modular-prefab-lido-beach-house-II-roof-floor-plan-drawing.jpg
prev / next