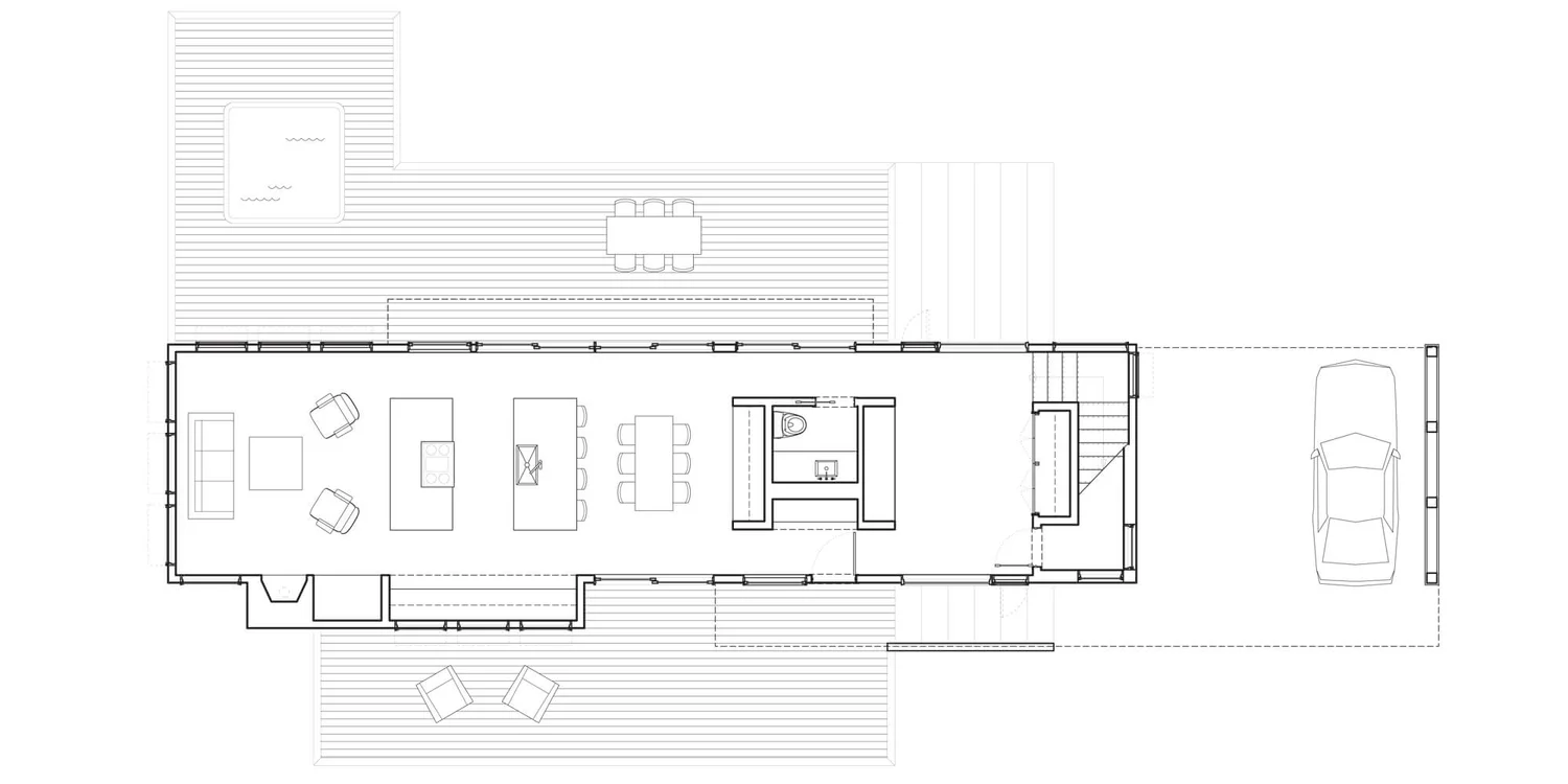
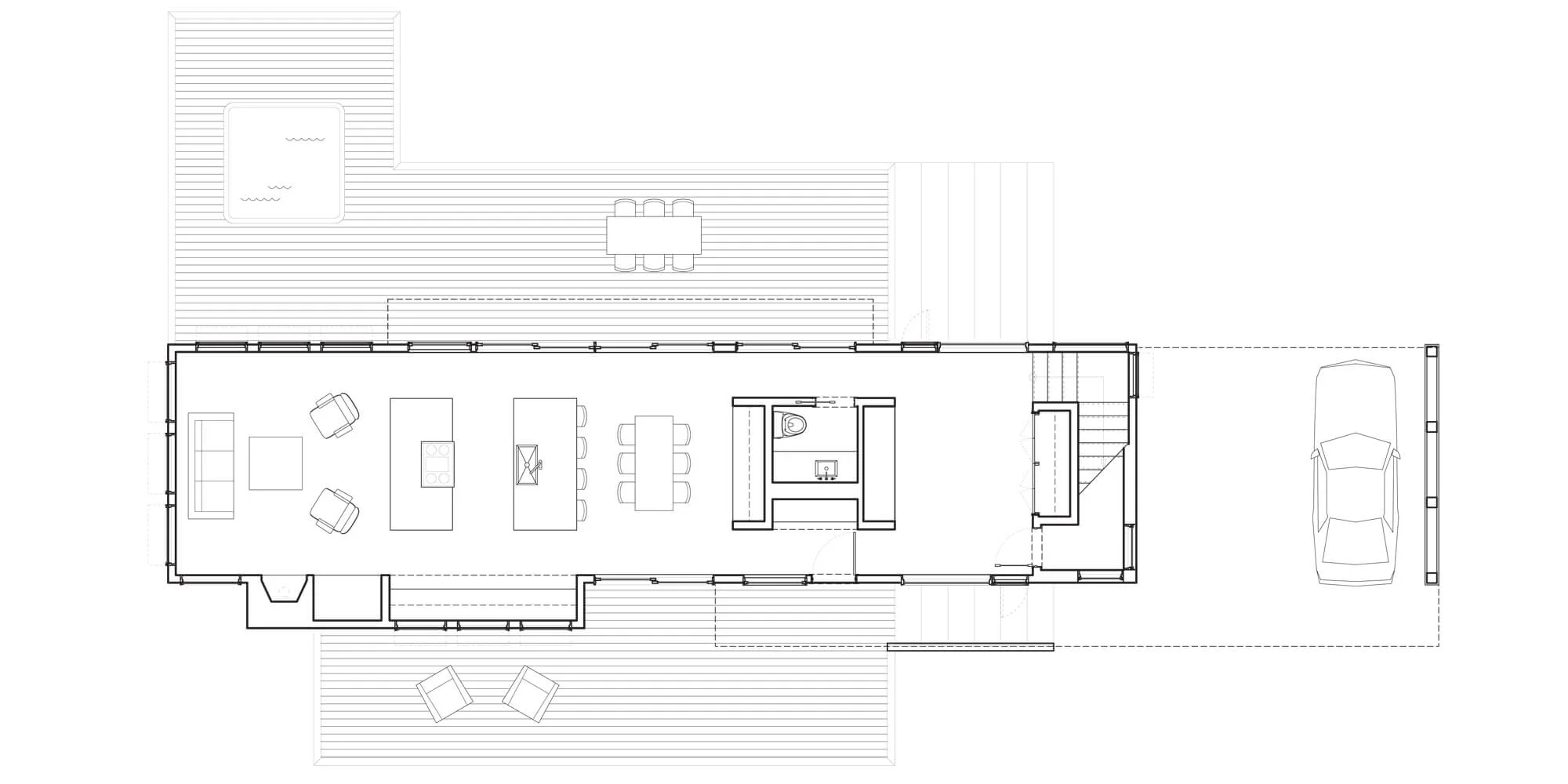
First Floor Plan
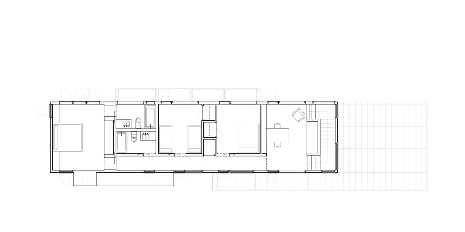
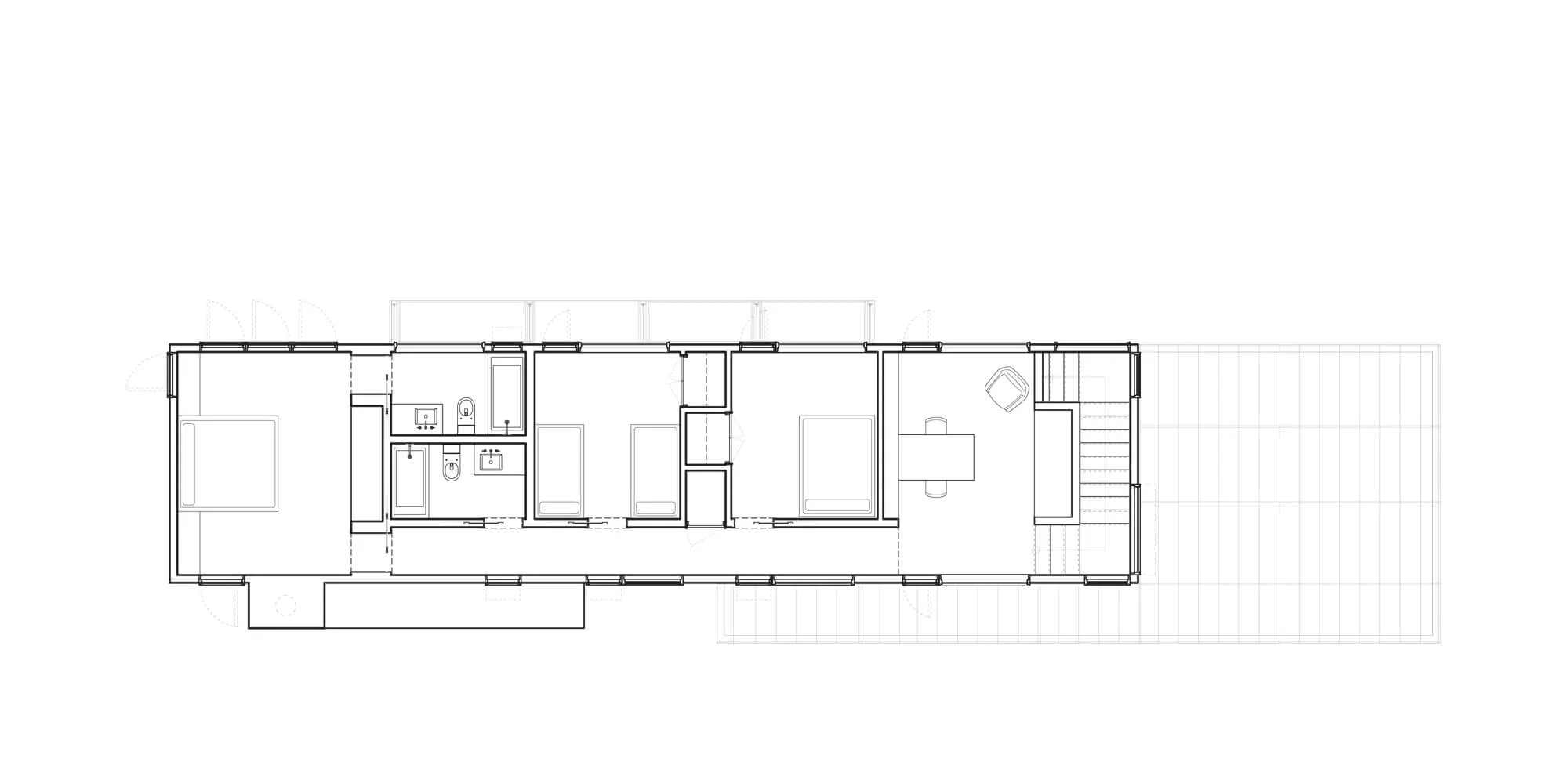
Second Floor Plan
prev / next