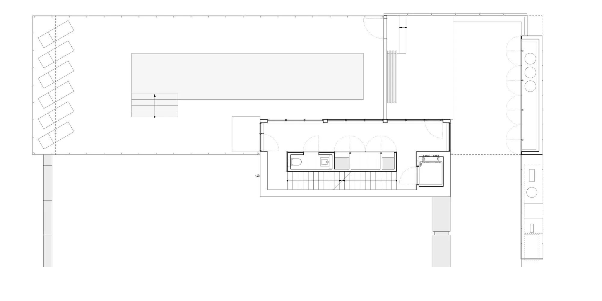
res4-resolution-4-architecture-modern-home-croton-on-hudson-river-house-ny-ground-floor-plan.jpg
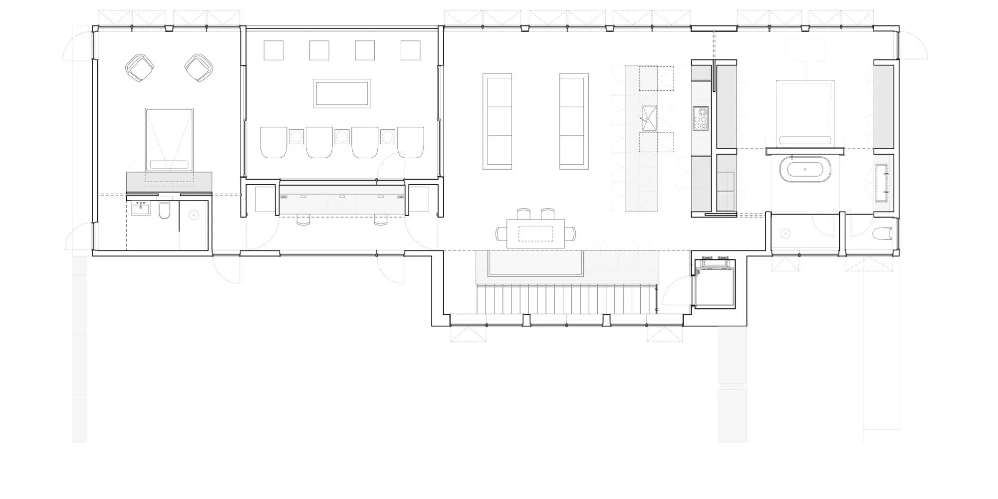
res4-resolution-4-architecture-modern-home-croton-on-hudson-river-house-ny-main-floor-plan.jpg
prev / next