Home
Projects
About
News
Contact
Menu
Home
Projects
About
News
Contact
Master Site Plan
Preliminary Plan Studies - Farmstand
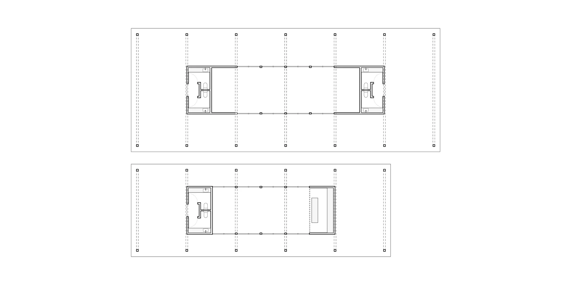
Preliminary Plan Studies - Event & Educational Spaces
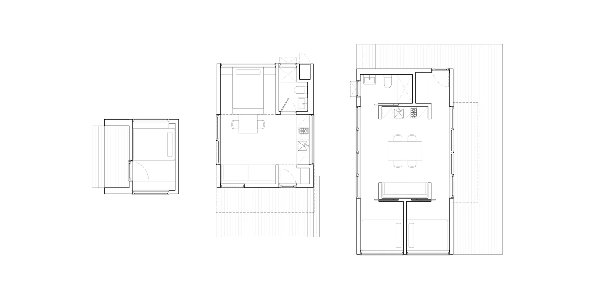
Preliminary Plan Studies - Cabins (Left to Right: Mini, One-Bed, Two-Bed)
prev
/
next