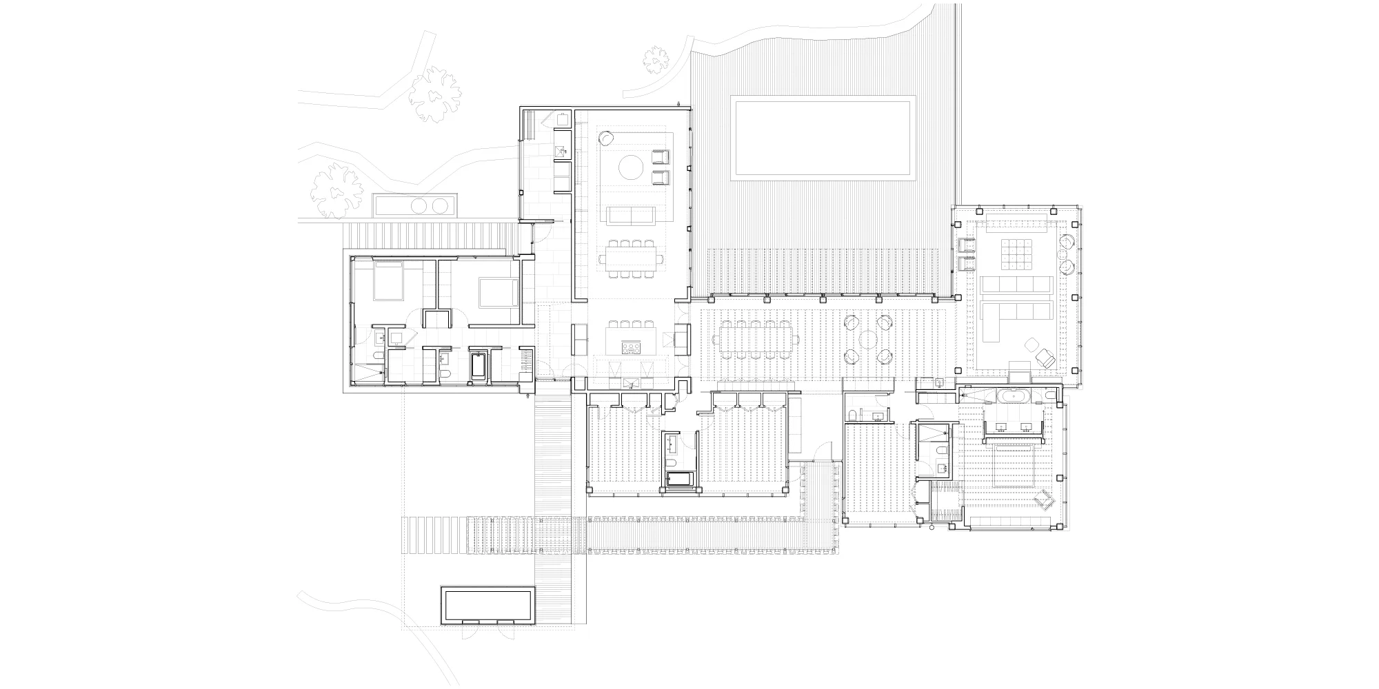
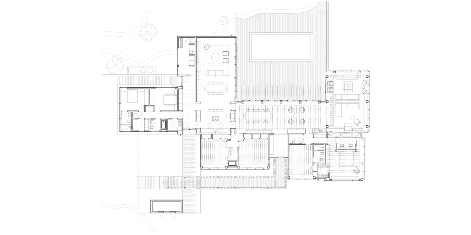
Floor Plan
1-01.jpg
2-01.jpg
prev / next