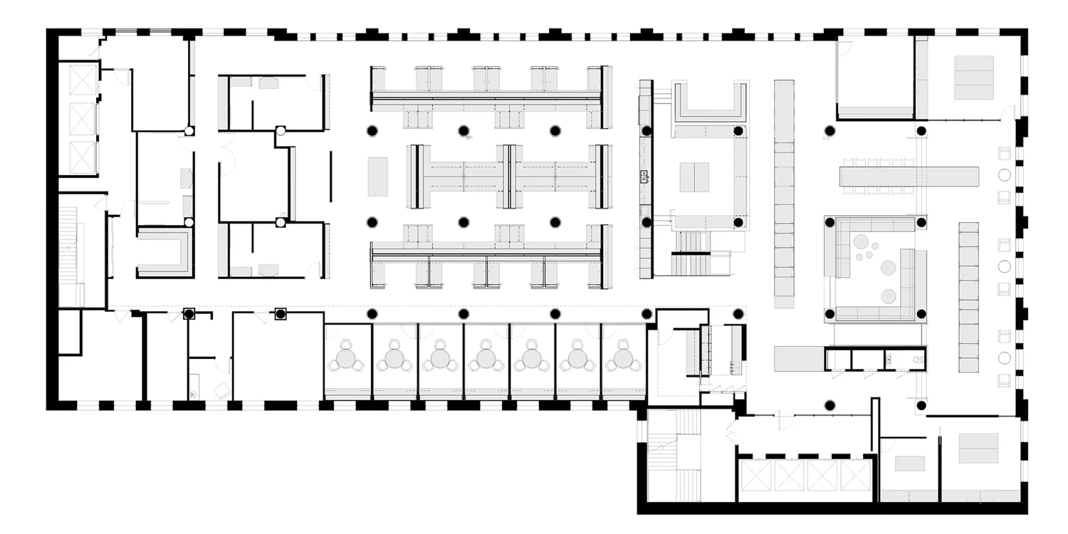
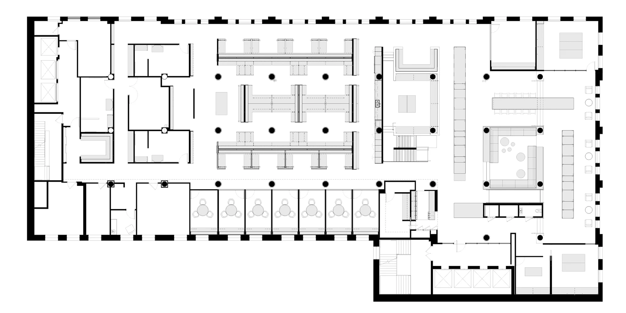
First Floor Plan
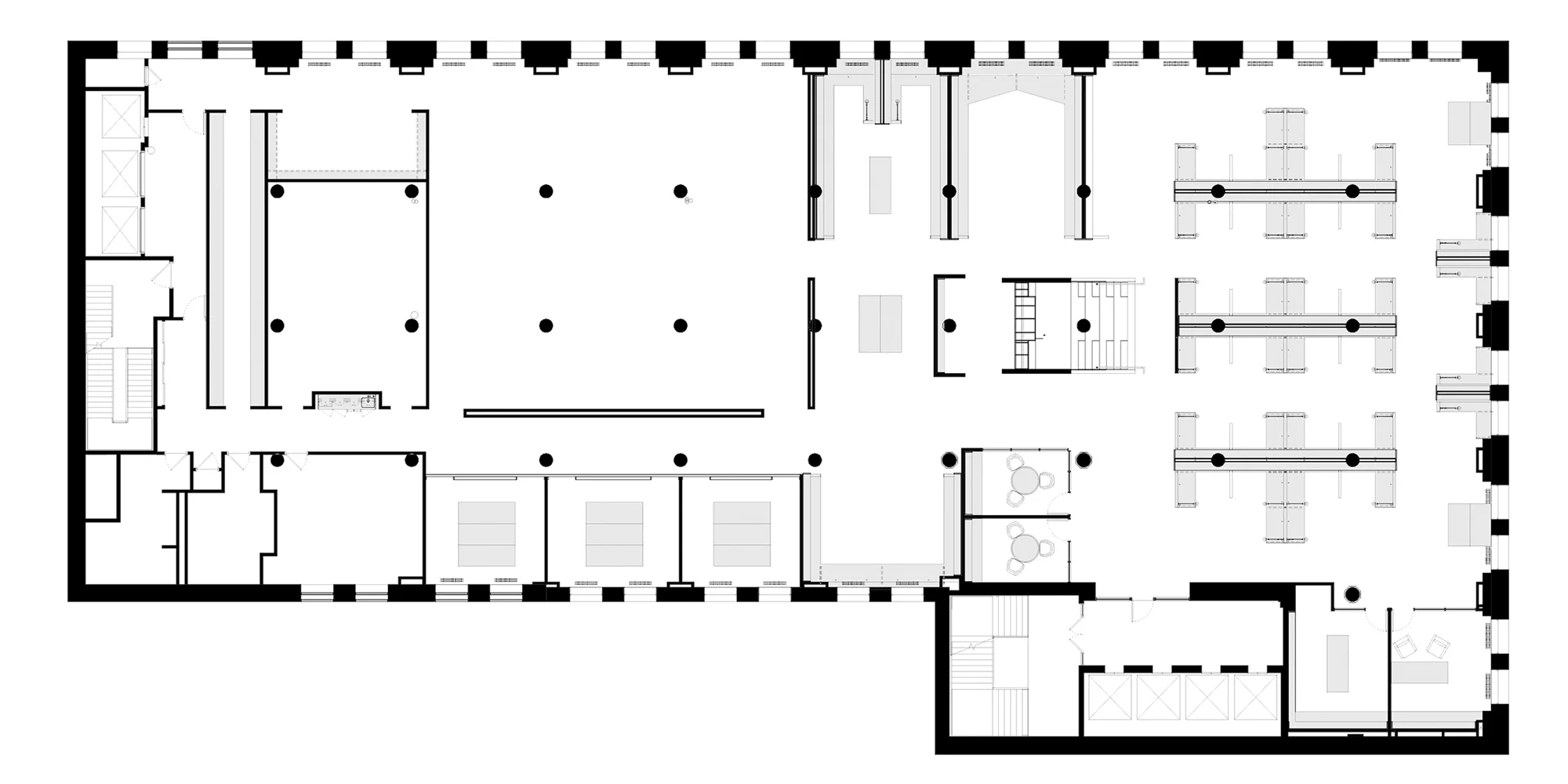
Second Floor Plan
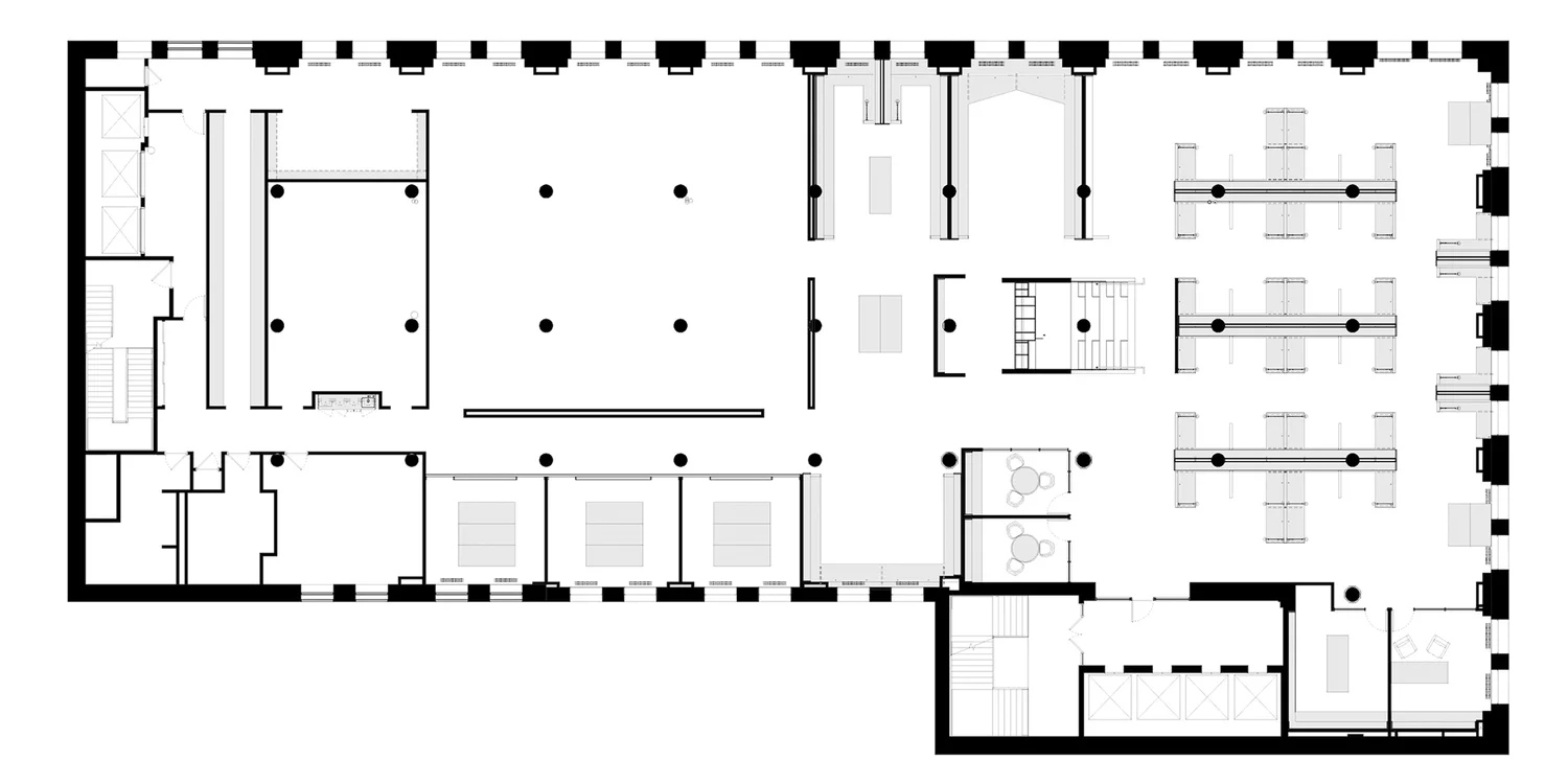
Third Floor Plan
prev / next