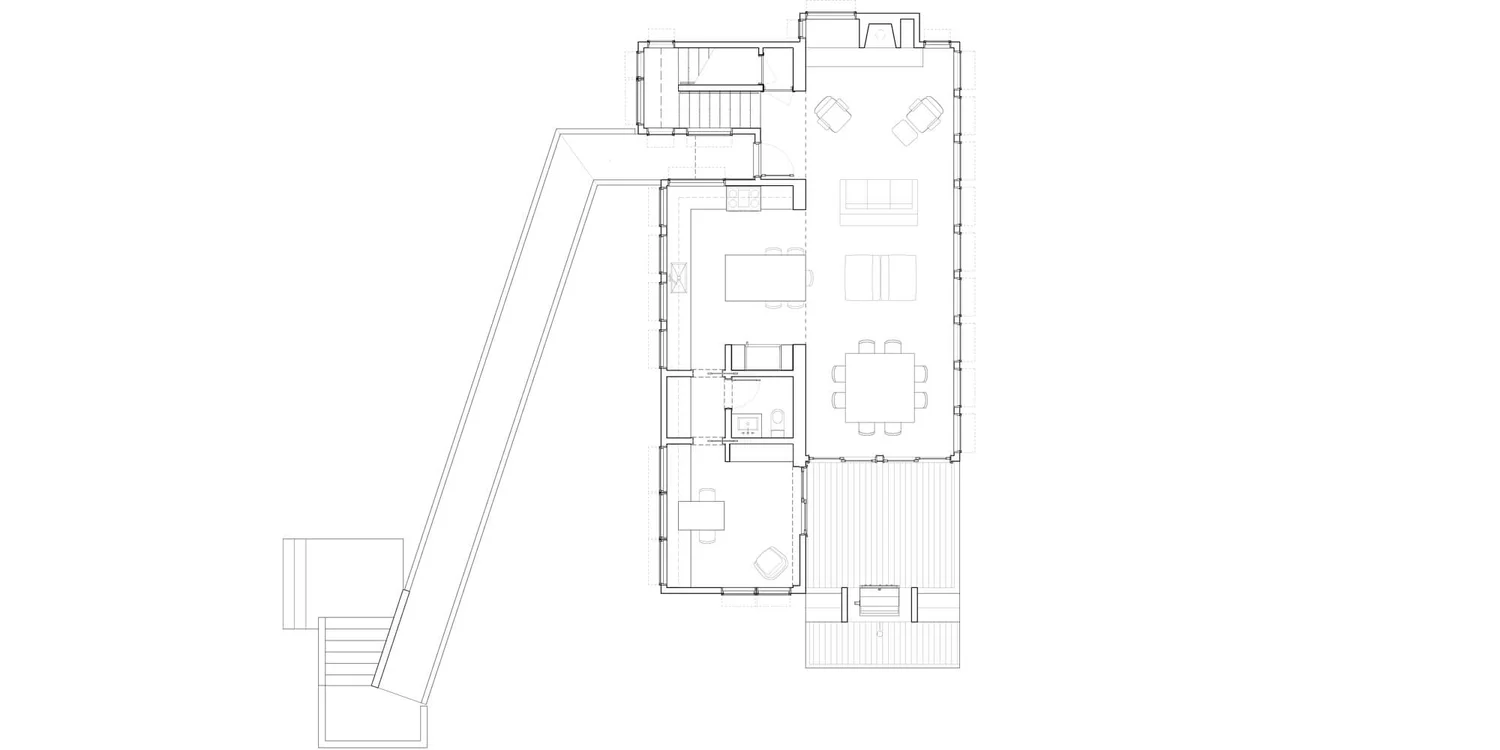
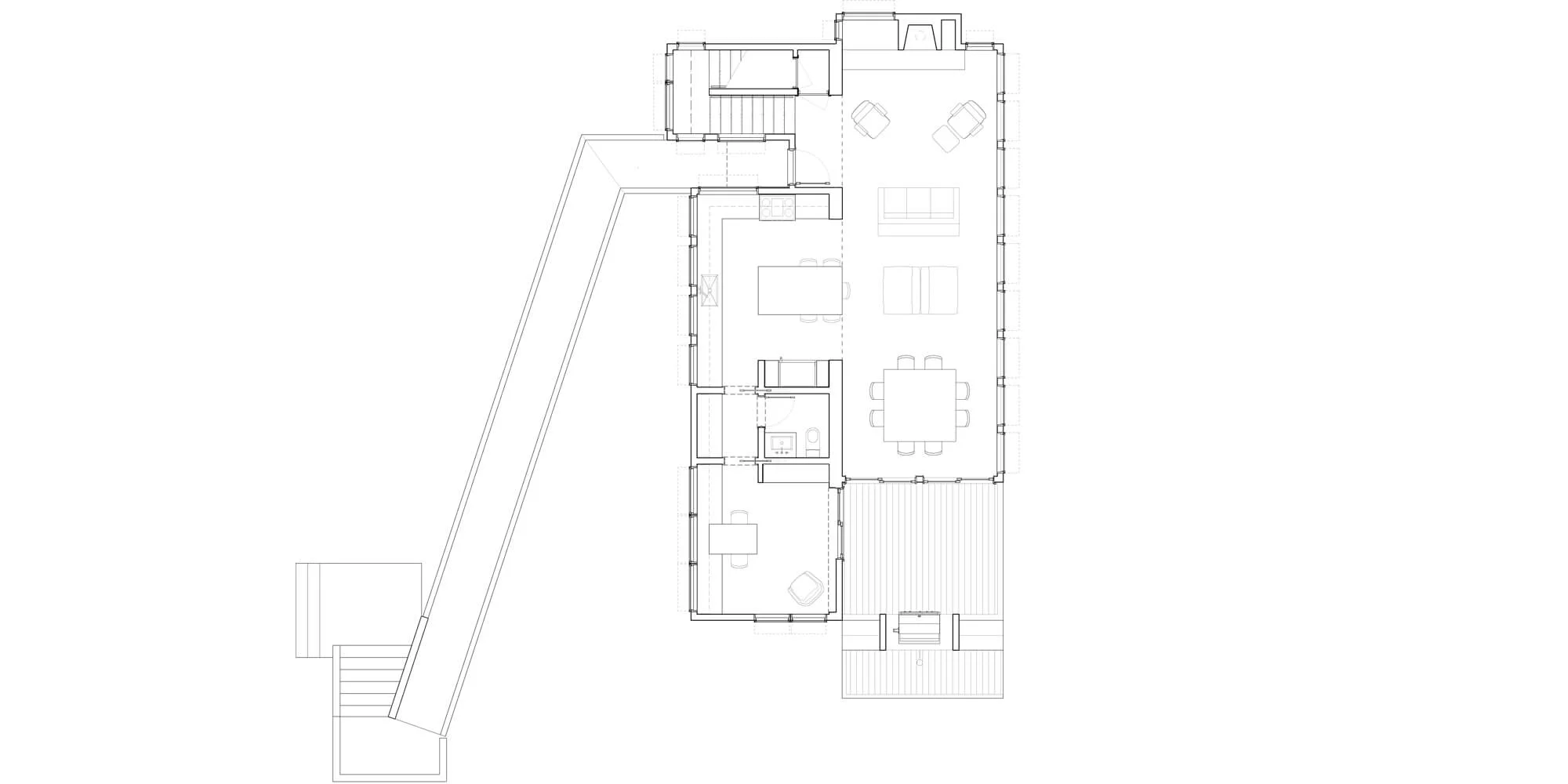
First Floor Plan
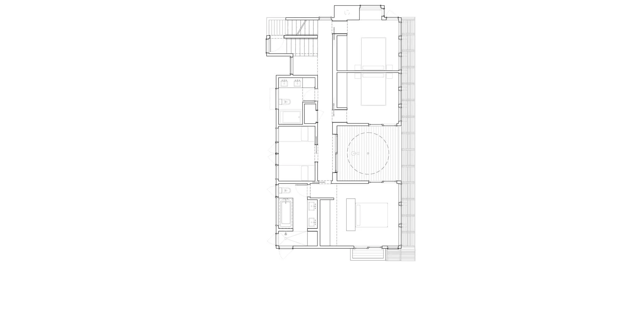
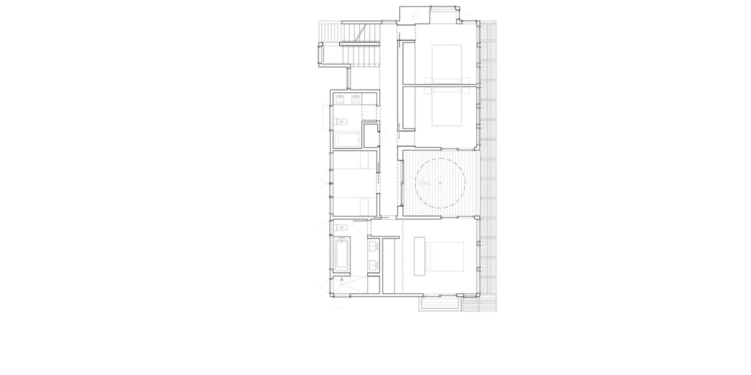
Second Floor Plan
Roof Plan
prev / next