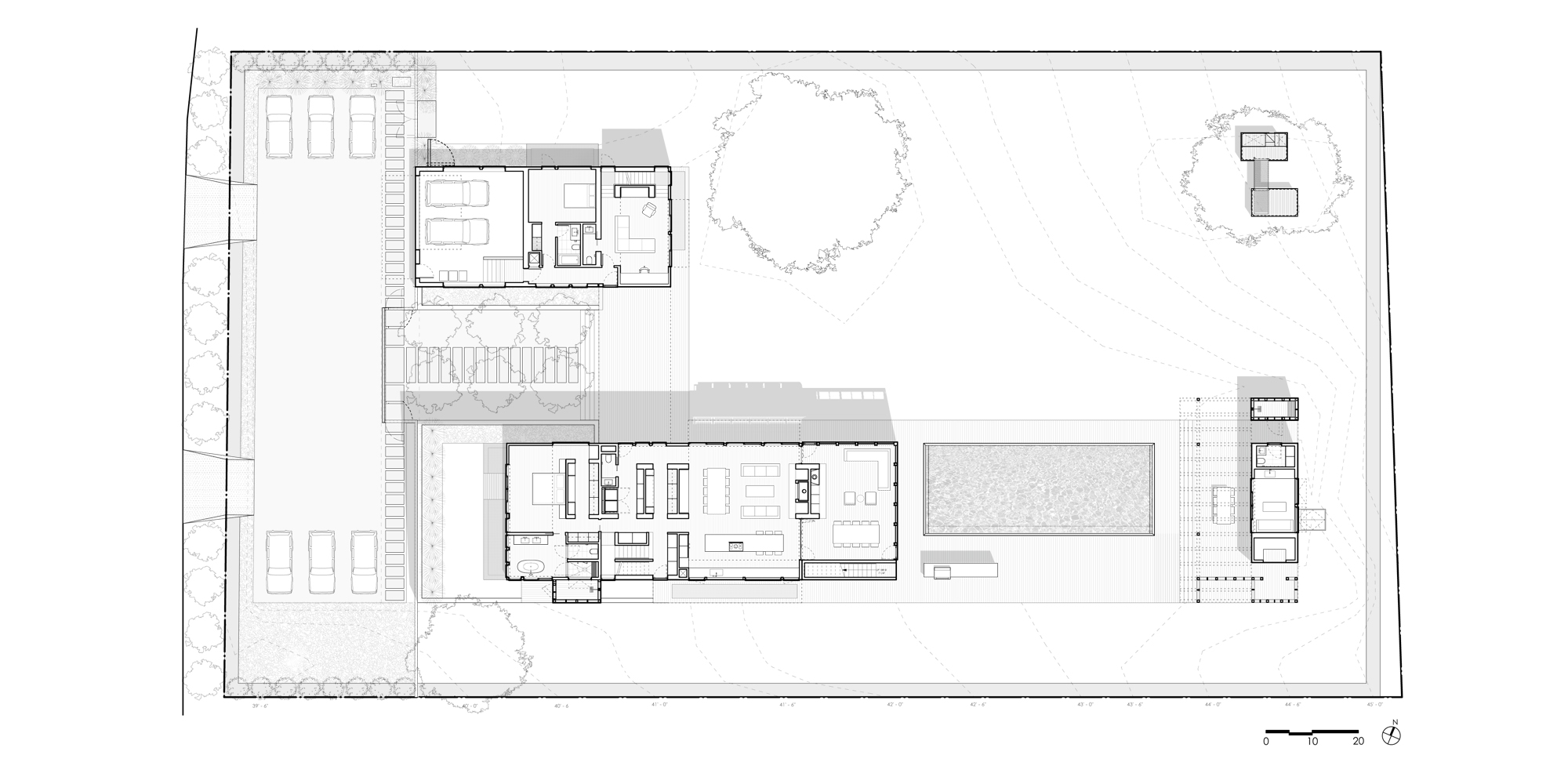
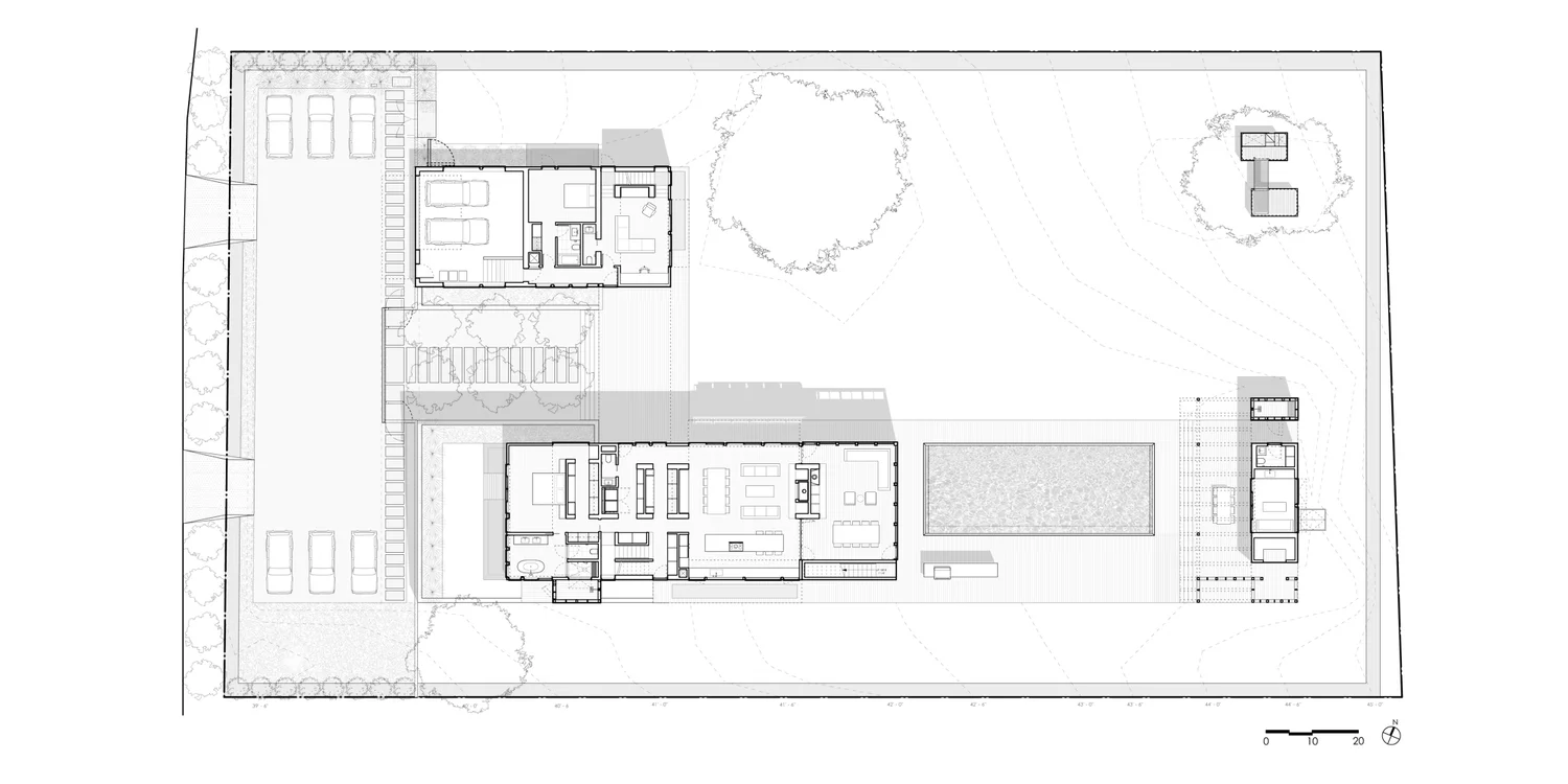
Site Plan & First Floor Plan
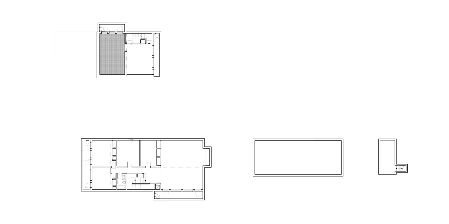
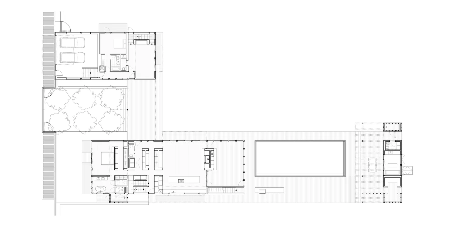
Basement Floor Plan
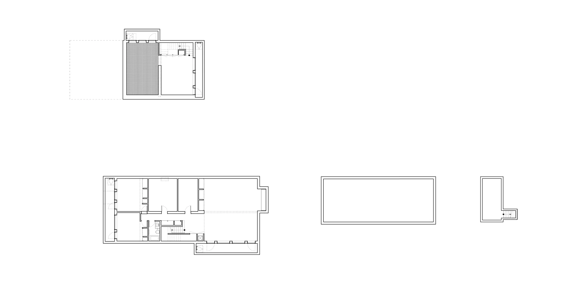
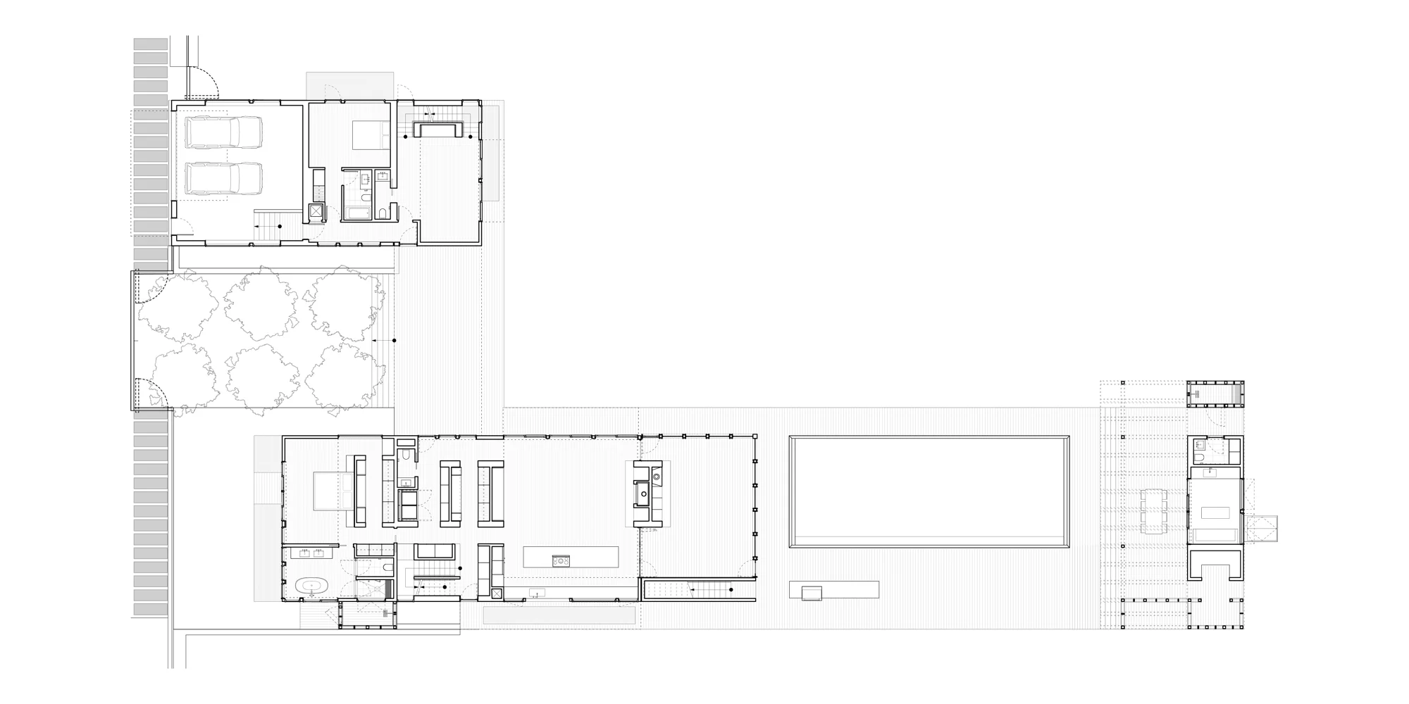
First Floor Plan
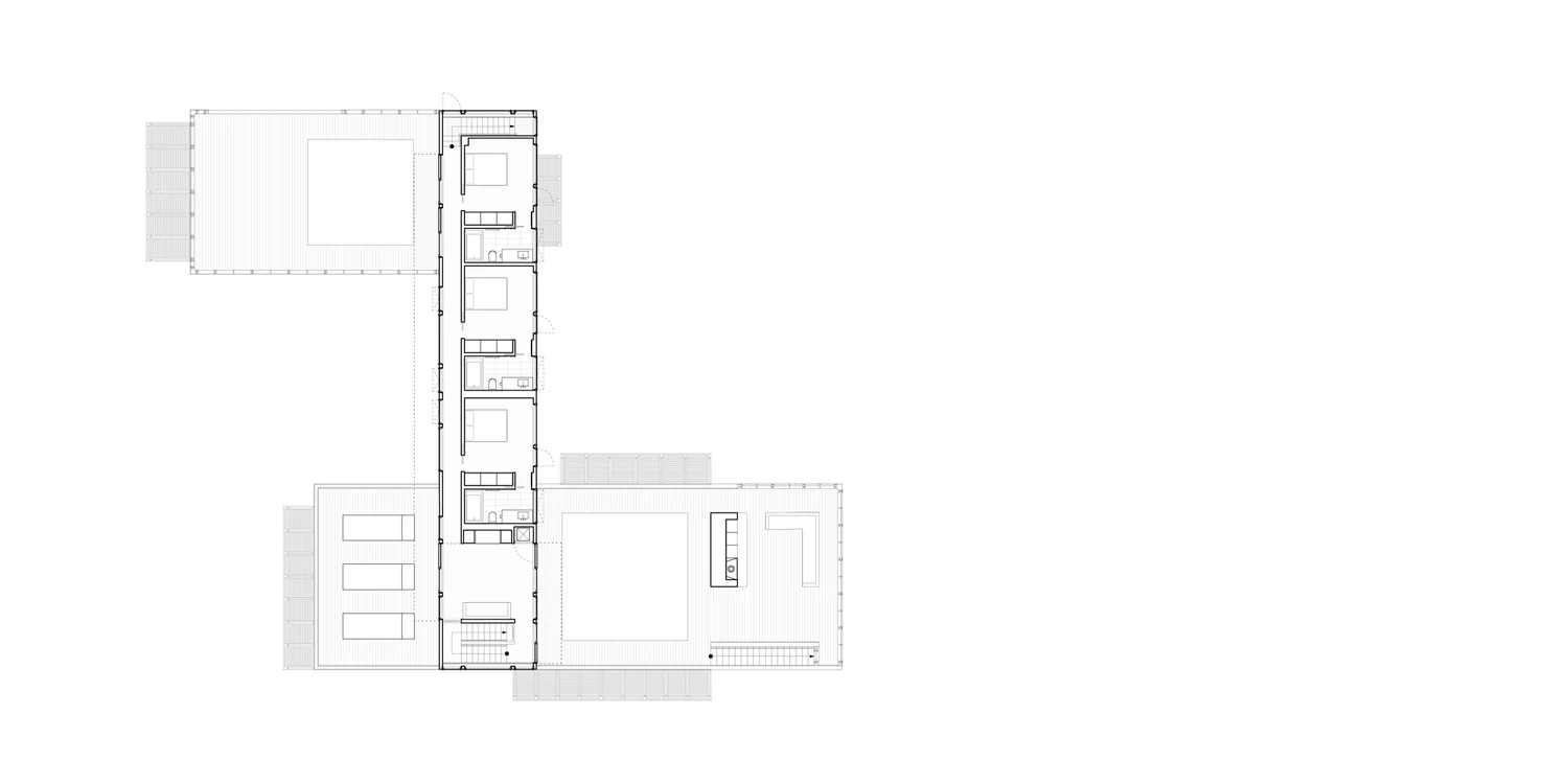
Second Floor Plan
prev / next