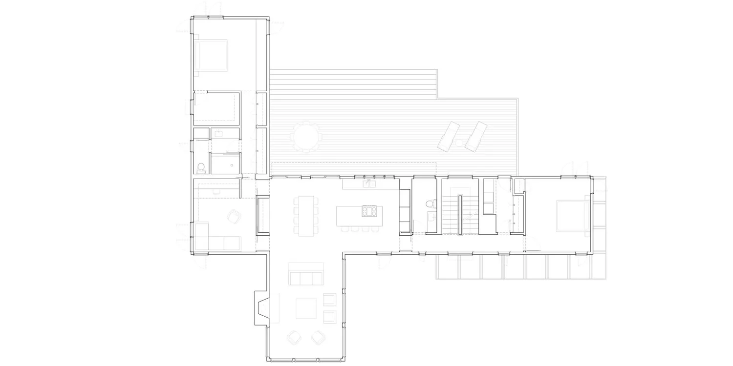
First Floor Plan
Second Floor Plan
Third Floor Plan
prev / next