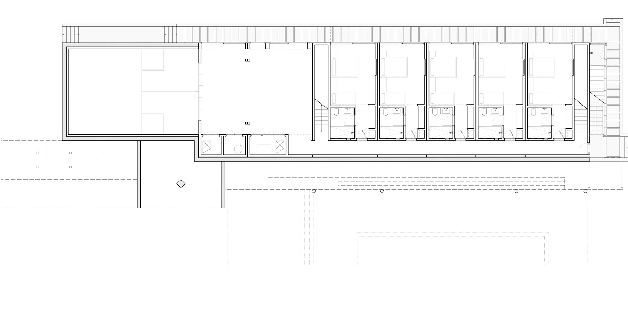
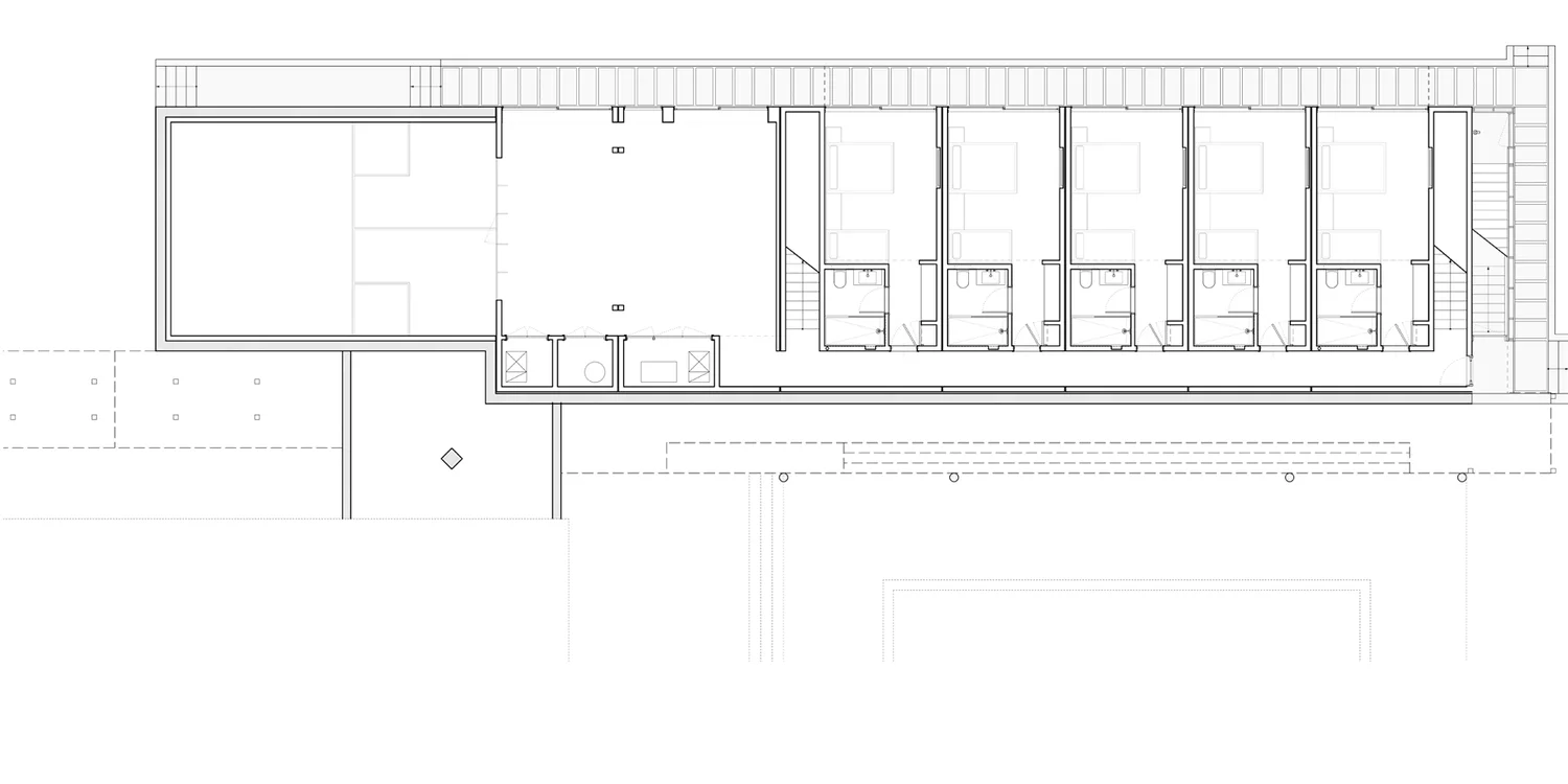
Basement Floor Plan
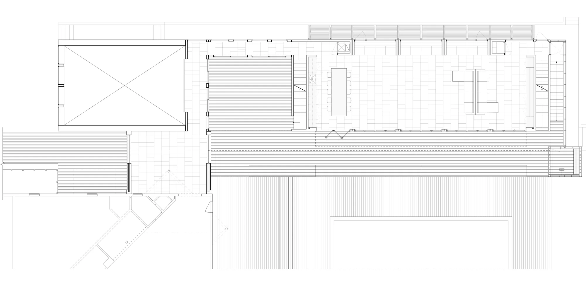
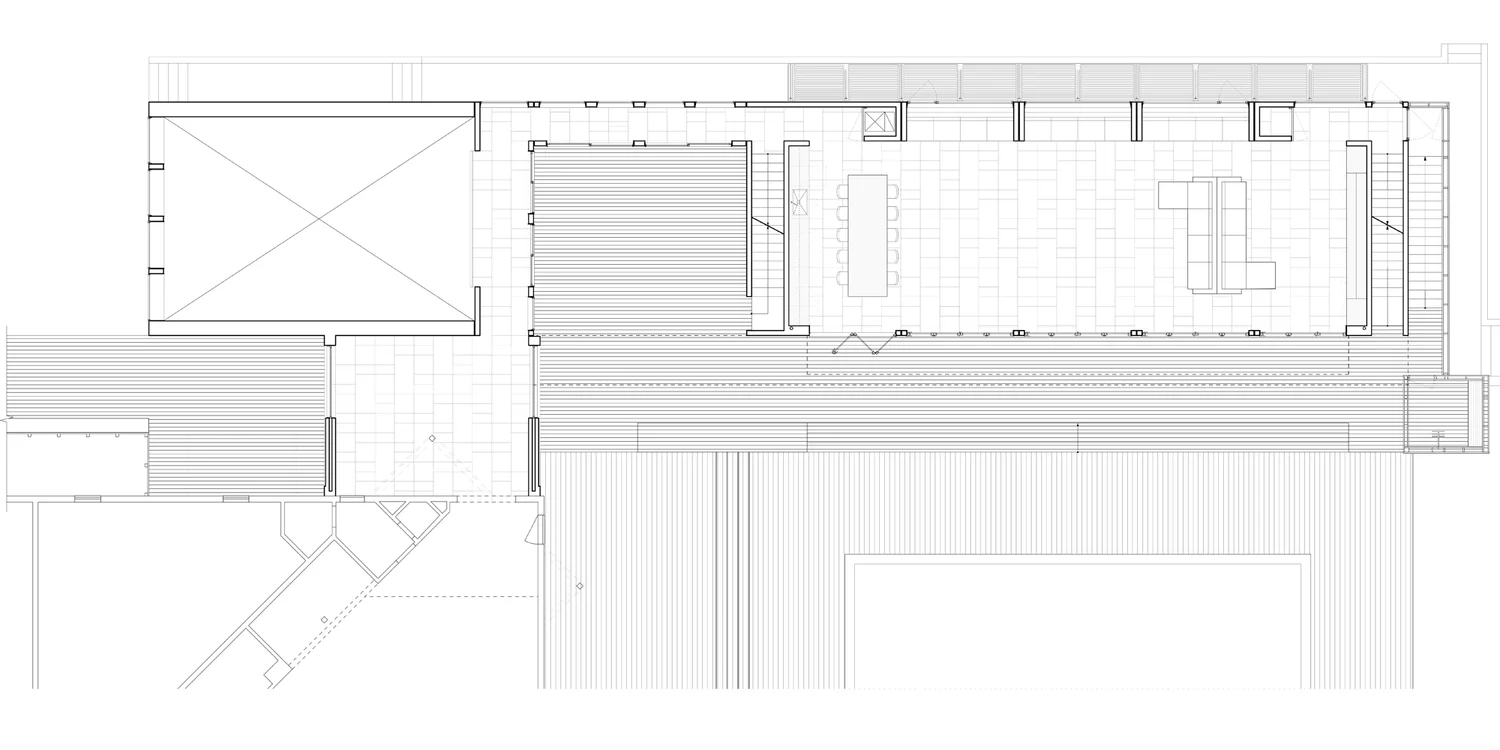
First Floor Plan
Roof Plan
prev / next