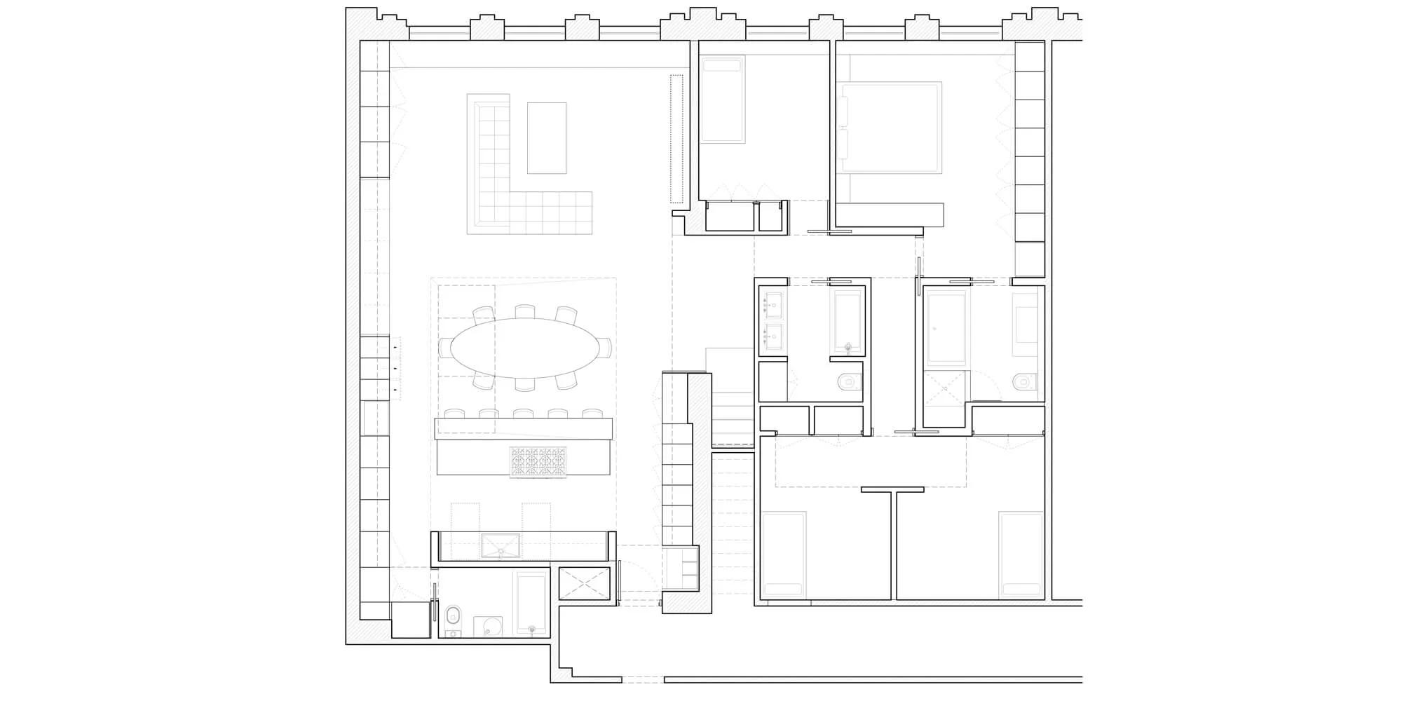
Floor Plan
Roof Plan
prev / next